NOUVELLE CONSTRUCTION DE BUNGALOWS À HONDÓN DE LAS NIEVES
Nouvelle construction de 4 bungalows situés à Hondón de las Nieves (Alicante).
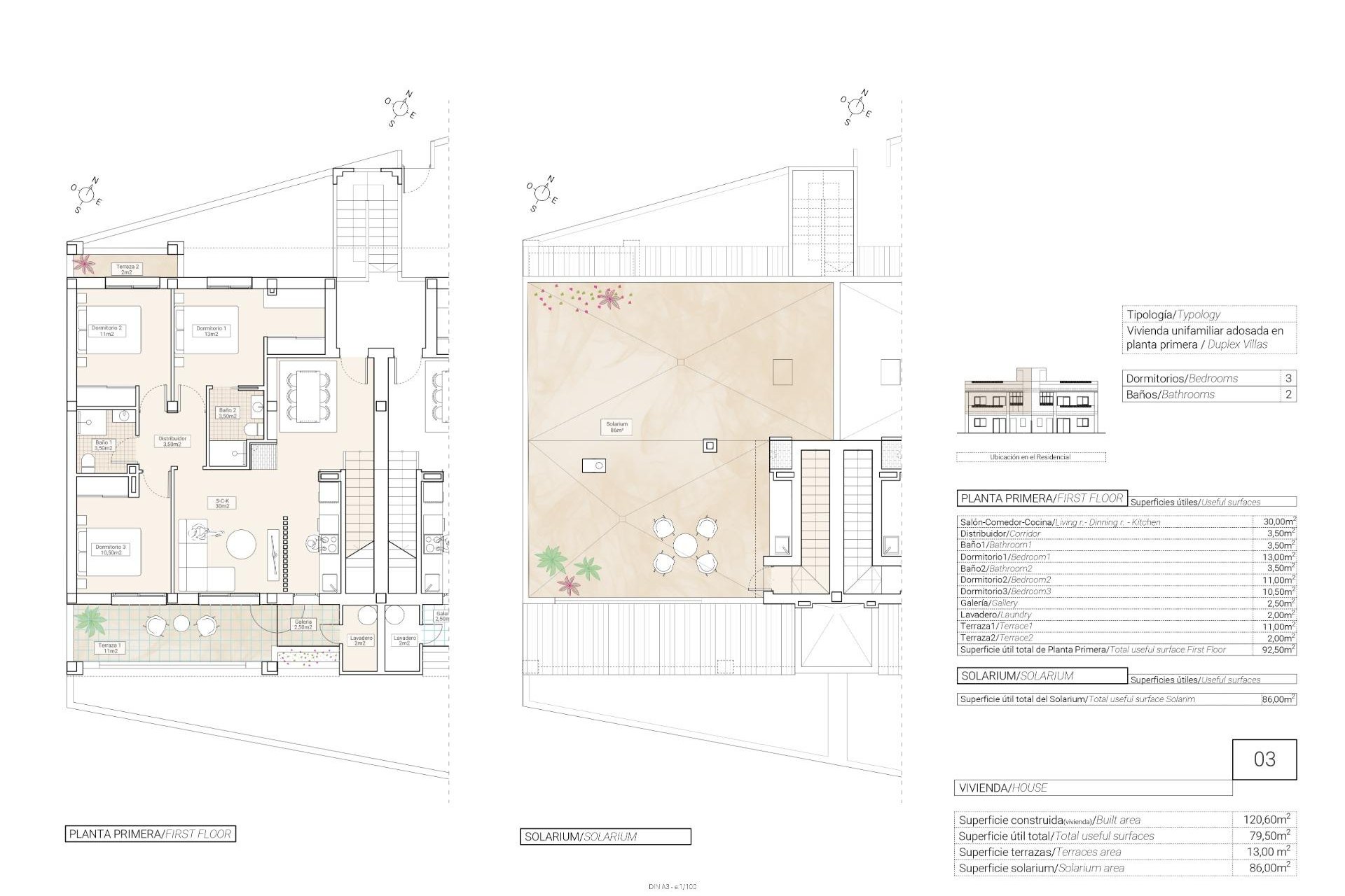
Tous les bungalows ont 3 chambres à coucher avec placards, 2 salles de bains, un grand salon, une cuisine équipée et une terrasse.
Les propriétés sont disponibles au rez-de-chaussée avec terrasse/jardin avant et arrière et au dernier étage avec terrasse et solarium privé.
Les propriétés du premier étage sont équipées de panneaux photovoltaïques sur le toit pour économiser l'énergie.
Les cuisines sont entièrement équipées et dotées de plans de travail en granit ou en aggloméré synthétique (silestone ou similaire).
Les salles de bains sont équipées d'appareils sanitaires et de robinets de haute qualité avec réservoir de chasse intégré.
Ces maisons sont équipées d'une pré-installation pour la climatisation avec pompe à chaleur, d'une ventilation forcée avec récupération de chaleur, d'un système aérothermique pour l'eau chaude sanitaire, d'une isolation thermique et acoustique des plus modernes, d'une menuiserie extérieure en aluminium avec rupture de pont thermique et de volets.
Hondón de las Nieves est une ville de la Communauté valencienne, en Espagne.
Elle est située au sud-ouest de la province d'Alicante, dans la région du Vinalopó Medio.
Les plages et l'aéroport d'Alicante se trouvent à 30 minutes en voiture.