Obra nueva » Bungalow » Hondón de las Nieve
Agency & AM Property

Hondón de las Nieves · El Salero Bungalow · Obra nueva

REF: NB-22821
215.000€

Hondón de las Nieves · El Salero Bungalow · Obra nueva

BUNGALOWS DE OBRA NUEVA EN HONDON DE LAS NIEVES

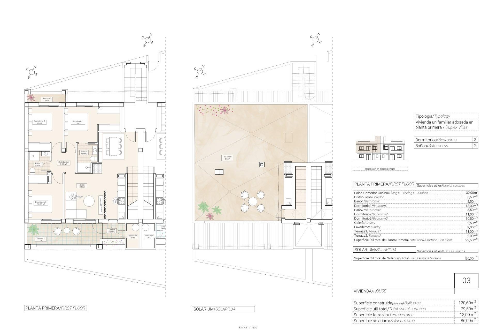
Características

Habitaciones: 3
Baños: 2
Construidos: 120m2
Útiles: 80m2
Distancia a la playa: 37000 Mts.
Near Schools
Key Ready
Solarium: Yes
Double Bedrooms: 3
Air Conditioning: Pre-Installed
Useable Build Space: 80 Msq.
Space
Terrace: 99 Msq.
Location: Rural
Beach: 37000 Meters
Gated

Localización

separador

AGENCY & AM Realizar una consulta

CONTACTAR POR WHATSAPP
Responsable del tratamiento: Agency M a M, Finalidad del tratamiento: Gestión y control de los servicios ofrecidos a través de la página Web de Servicios inmobiliarios, Envío de información a traves de newsletter y otros, Legitimación: Por consentimiento, Destinatarios: No se cederan los datos, salvo para elaborar contabilidad, Derechos de las personas interesadas: Acceder, rectificar y suprimir los datos, solicitar la portabilidad de los mismos, oponerse altratamiento y solicitar la limitación de éste, Procedencia de los datos: El Propio interesado, Información Adicional: Puede consultarse la información adicional y detallada sobre protección de datos Aquí.
WhatsApp