Villas de nueva construcción con piscina privada cerca de La Serena Golf en Los Alcázares
Exclusiva promoción boutique cerca del campo de golf y la playa
Descubra esta exclusiva promoción residencial de tan solo ocho villas independientes de nueva construcción, con una ubicación ideal entre La Serena Golf y la encantadora localidad costera de Los Alcázares. Situadas a solo 1500 metros de las playas del Mar Menor, estas viviendas ofrecen la combinación perfecta de golf, mar y estilo de vida mediterráneo.
La ubicación permite a los residentes disfrutar de un acceso a pie tanto al campo de golf como al centro de la localidad, donde se puede encontrar una amplia variedad de restaurantes, tiendas, cafeterías y servicios esenciales. Los Alcázares es conocida por su ambiente relajado, su largo paseo marítimo y sus aguas cálidas y poco profundas, lo que la convierte en un destino popular tanto para turistas como para residentes permanentes.
Villas modernas con distribuciones flexibles
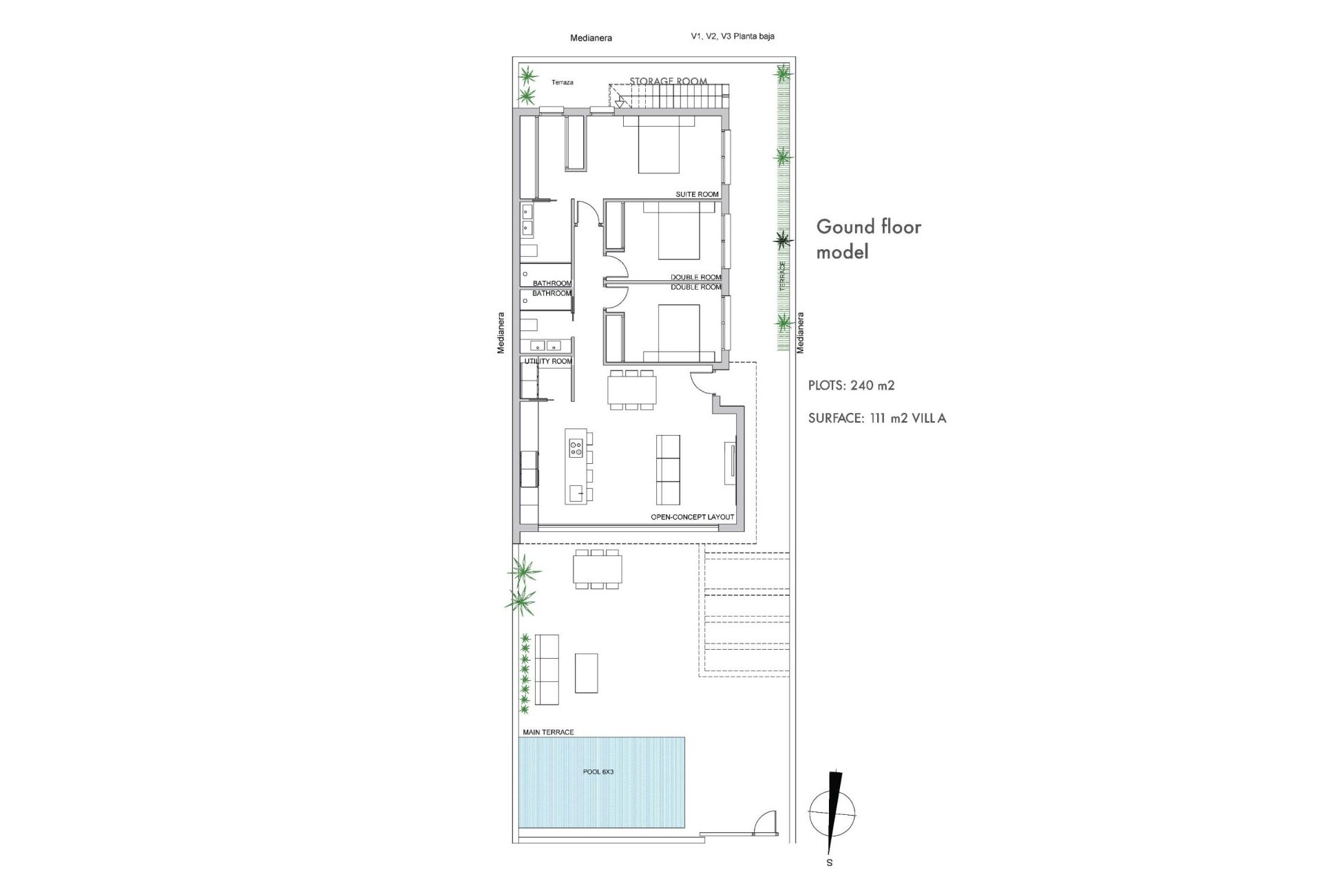
Estas villas contemporáneas están disponibles en configuraciones de dos o tres dormitorios, con opciones de diseño de una sola planta o de dos plantas. Construidas en parcelas privadas a partir de 200 m², cada vivienda está diseñada para maximizar el espacio, el confort y la luz natural.
Todas las villas cuentan con piscina privada y aparcamiento en la parcela, lo que crea un entorno exterior privado y funcional, ideal para disfrutar del clima soleado durante todo el año.
Las villas de una sola planta incluyen un solárium privado en la azotea, perfecto para tomar el sol o relajarse con vistas despejadas. Las villas de dos plantas ofrecen amplias terrazas en la planta superior, lo que proporciona zonas de estar al aire libre adicionales.
Espacios diáfanos y conexión con el exterior
La distribución interior se centra en espacios diáfanos, con luminosas zonas de salón y comedor perfectamente conectadas con modernas cocinas. Los grandes ventanales permiten que la luz natural inunde los espacios, al tiempo que ofrecen acceso directo a las terrazas y a las zonas de piscina.
Este diseño potencia el estilo de vida que combina el interior y el exterior, característico de la Costa Cálida, lo que hace que estas villas sean ideales tanto para la vida cotidiana como para recibir invitados.
Acabados de alta calidad y prestaciones modernas
Las villas se han construido siguiendo unos altos estándares, utilizando materiales de calidad y marcas de confianza. Entre las prestaciones se incluyen una puerta de entrada de seguridad reforzada de DIERRE, armarios empotrados y cocinas modernas equipadas con electrodomésticos BOSCH.
Otras especificaciones incluyen un sistema aerotérmico para agua caliente, persianas motorizadas y una puerta de acceso para vehículos automatizada. Se ha prestado especial atención a cada detalle para ofrecer comodidad, eficiencia y practicidad.
Ubicación privilegiada en la Costa Cálida
Los Alcázares ofrece una ubicación excelente con fácil acceso a playas, campos de golf y conexiones de transporte. Las playas del Mar Menor están a solo 1,5 km, mientras que el campo de golf La Serena se encuentra a poca distancia a pie.
Otras distancias clave incluyen el aeropuerto de Murcia-Corvera a 35 km, Cartagena a 25 km, la ciudad de Murcia a 50 km y el aeropuerto de Alicante a 90 km.
Oportunidad ideal de inversión o vivienda vacacional
Estas villas de nueva construcción ofrecen una oportunidad única de adquirir una propiedad moderna en una ubicación privilegiada, cerca tanto del mar como del golf.
Póngase en contacto con nosotros hoy mismo para obtener más información o concertar una visita y asegurarse su nueva villa en Los Alcázares.