New Build Villas with Private Pool Near La Serena Golf in Los Alcazares
Exclusive Boutique Development Near Golf and Beach
Discover this exclusive residential development of only eight independent new build villas ideally located between La Serena Golf and the charming coastal town of Los Alcazares. Situated just 1500 meters from the Mar Menor beaches, these homes offer the perfect combination of golf, sea and Mediterranean lifestyle.
The location allows residents to enjoy walking distance access to both the golf course and the town center, where a wide range of restaurants, shops, cafes and essential services can be found. Los Alcazares is known for its relaxed atmosphere, long promenade and shallow warm waters, making it a popular destination for both holidaymakers and permanent residents.
Modern Villas with Flexible Layouts
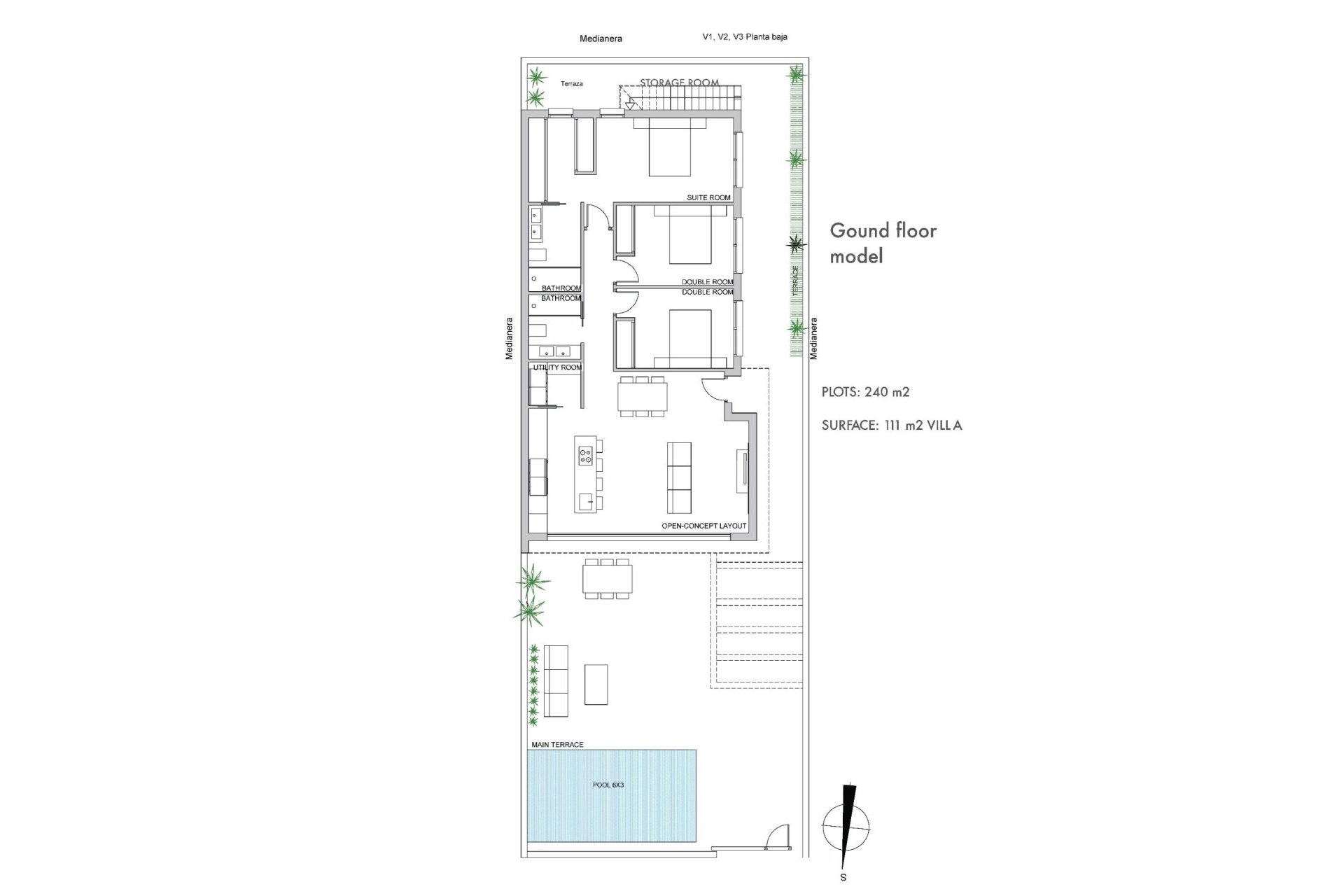
These contemporary villas are available in two or three bedroom configurations, with options for single level or two level designs. Built on private plots starting from 200 m2, each home is designed to maximize space, comfort and natural light.
All villas feature a private swimming pool and on plot parking, creating a private and functional outdoor environment ideal for enjoying the sunny climate all year round.
Single level villas include a private rooftop solarium, perfect for sunbathing or relaxing with open views. Two level villas offer spacious terraces on the upper floor, providing additional outdoor living areas.
Open Plan Living and Outdoor Connection
The interior layout focuses on open plan living, with bright living and dining areas seamlessly connected to modern kitchens. Large windows allow natural light to fill the spaces while offering direct access to terraces and pool areas.
This design enhances the indoor outdoor lifestyle that defines living on the Costa Calida, making these villas ideal for both everyday living and entertaining guests.
High Quality Finishes and Modern Features
The villas are built to high standards using quality materials and trusted brands. Features include a reinforced security entrance door by DIERRE, fully fitted wardrobes and modern kitchens equipped with BOSCH appliances.
Additional specifications include aerothermal system for hot water, motorized shutters and an automated vehicle access gate. Every detail has been carefully considered to provide comfort, efficiency and convenience.
Prime Location on the Costa Calida
Los Alcazares offers an excellent location with easy access to beaches, golf courses and transport connections. The Mar Menor beaches are just 1.5 km away, while La Serena Golf is within walking distance.
Other key distances include Murcia Corvera Airport 35 km, Cartagena 25 km, Murcia city 50 km and Alicante Airport 90 km.
Ideal Investment or Holiday Home Opportunity
These new build villas offer a rare opportunity to own a modern property in a prime location close to both the sea and golf.
Contact us today for more information or to arrange a viewing and secure your new villa in Los Alcazares.