Obra nueva » Villa » Fuente Álamo » L
Agency & AM Property

Fuente Álamo · Las Palas Villa · Obra nueva

REF: NB-83629
242.000€

Fuente Álamo · Las Palas Villa · Obra nueva

PAREADO LLAVE EN MANO EN FUENTE ALAMO, MURCIA

Características

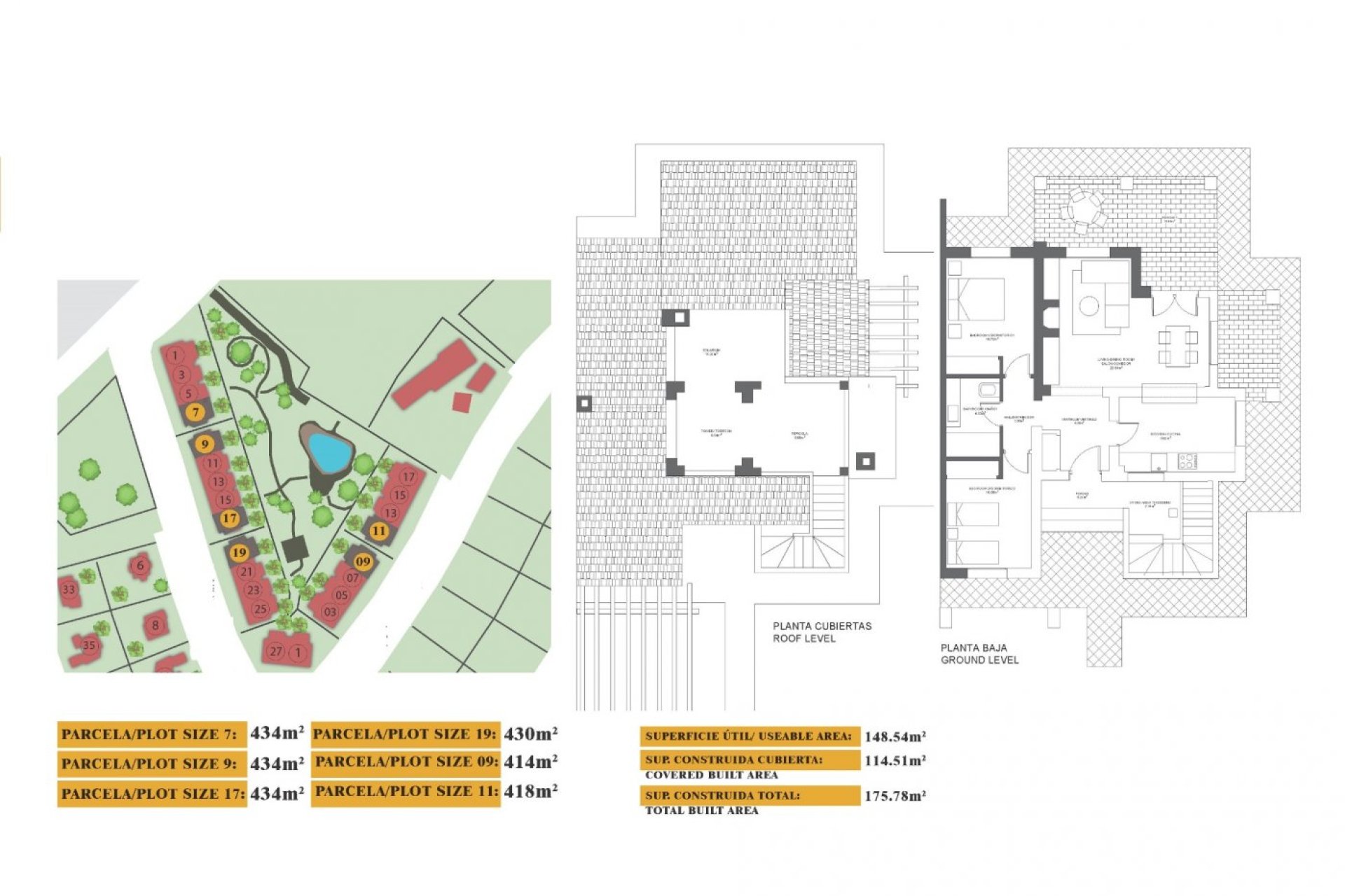
Habitaciones: 2
Baños: 1
Construidos: 175m2
Útiles: 148m2
Parcela: 430m2
Distancia a la playa: 7500 Mts.
Number of Parking Spaces: 1
Double Bedrooms: 2
Garden
Key Ready
Location: Rural, Urbanisation
Air Conditioning: Pre-Installed
Beach: 7500 Meters
Useable Build Space: 148 Msq.
Terrace: 45 Msq.
Parking - Space
Storage / Trastero
Gated

Localización

separador

AGENCY & AM Realizar una consulta

CONTACTAR POR WHATSAPP
Responsable del tratamiento: Agency M a M, Finalidad del tratamiento: Gestión y control de los servicios ofrecidos a través de la página Web de Servicios inmobiliarios, Envío de información a traves de newsletter y otros, Legitimación: Por consentimiento, Destinatarios: No se cederan los datos, salvo para elaborar contabilidad, Derechos de las personas interesadas: Acceder, rectificar y suprimir los datos, solicitar la portabilidad de los mismos, oponerse altratamiento y solicitar la limitación de éste, Procedencia de los datos: El Propio interesado, Información Adicional: Puede consultarse la información adicional y detallada sobre protección de datos Aquí.
WhatsApp