New Build » Villa » Fuente Álamo » La
Agency & AM Property

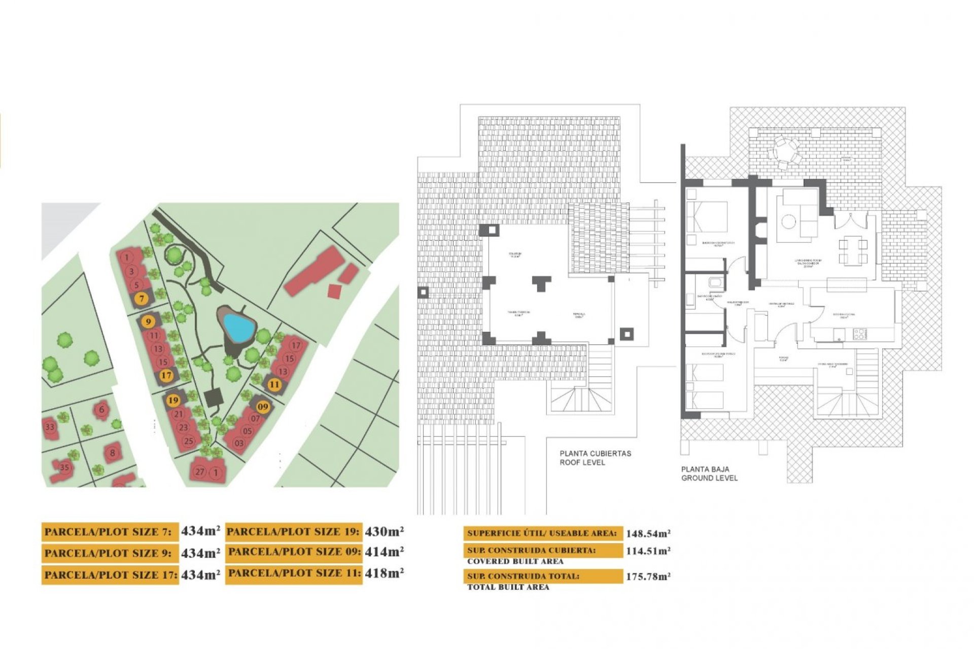
Fuente Álamo · Las Palas Villa · New Build

REF: NB-83629
242.000€

Fuente Álamo · Las Palas Villa · New Build

  • Built 175m2
  • Plot 430m2
  • Bedrooms 2
  • Bathrooms 1
  • PDF/Print

KEY READY SEMI-DETACHED VILLA IN FUENTE ALAMO, MURCIA

Features

Bedrooms: 2
Bathrooms: 1
Built: 175m2
Usable: 148m2
Plot: 430m2
Distance to beach: 7500 Mts.
Gated
Number of Parking Spaces: 1
Double Bedrooms: 2
Garden
Key Ready
Location: Rural, Urbanisation
Air Conditioning: Pre-Installed
Beach: 7500 Meters
Useable Build Space: 148 Msq.
Terrace: 45 Msq.
Parking - Space
Storage / Trastero

Location

separador

AGENCY & AM Make an enquiry

CONTACT BY WHATSAPP
Responsable del tratamiento: Agency M a M, Finalidad del tratamiento: Gestión y control de los servicios ofrecidos a través de la página Web de Servicios inmobiliarios, Envío de información a traves de newsletter y otros, Legitimación: Por consentimiento, Destinatarios: No se cederan los datos, salvo para elaborar contabilidad, Derechos de las personas interesadas: Acceder, rectificar y suprimir los datos, solicitar la portabilidad de los mismos, oponerse altratamiento y solicitar la limitación de éste, Procedencia de los datos: El Propio interesado, Información Adicional: Puede consultarse la información adicional y detallada sobre protección de datos Aquí.
WhatsApp