Villa contemporaine de luxe avec vue sur la mer à Benimeit, Moraira
Cette villa contemporaine exclusive allie à la perfection fonctionnalité, architecture élégante et finitions haut de gamme. Située dans le quartier résidentiel très prisé de Benimeit à Moraira, la propriété occupe un terrain en hauteur sur une colline, offrant une vue panoramique imprenable sur le paysage environnant et la mer Méditerranée. La villa se trouve à moins de 3 km du littoral, offrant un équilibre parfait entre intimité, tranquillité et accès facile à la plage et aux commodités locales.
La conception de la maison a été soigneusement pensée pour créer une transition harmonieuse entre les espaces de vie intérieurs et extérieurs, maximisant la lumière naturelle et permettant au magnifique cadre environnant de s'intégrer au quotidien.
Un vaste espace de vie ouvert avec une transition fluide entre l'intérieur et l'extérieur
Le rez-de-chaussée comprend un grand espace de vie et de repas ouvert qui communique directement avec les terrasses extérieures et l'espace piscine. Des baies vitrées ouvrent tout l'espace sur l'extérieur, créant une atmosphère lumineuse et aérée tout en encadrant les vues panoramiques.
Le salon s'ouvre également sur l'arrière de la propriété, offrant une vue des deux côtés et favorisant la ventilation naturelle. La cuisine design moderne est équipée de meubles Savi de haute qualité et d'appareils électroménagers Miele haut de gamme, alliant style et fonctionnalité pour la vie quotidienne et les réceptions.
La villa offre un agencement des chambres bien pensé, conçu pour maximiser la vue et l'intimité. Deux chambres d'amis s'ouvrent sur le côté est de la propriété, tandis que la chambre principale du rez-de-chaussée bénéficie d'une vue vers l'ouest.
L'ensemble du rez-de-chaussée entretient un lien étroit avec les espaces extérieurs, notamment une grande terrasse couverte donnant sur la piscine à débordement et la vue, ainsi qu'une pergola arrière plus intime, idéale pour des moments de détente.
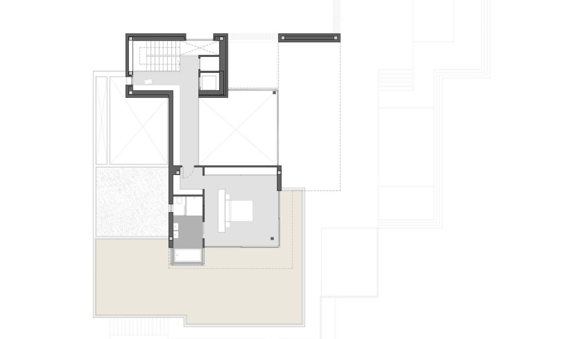
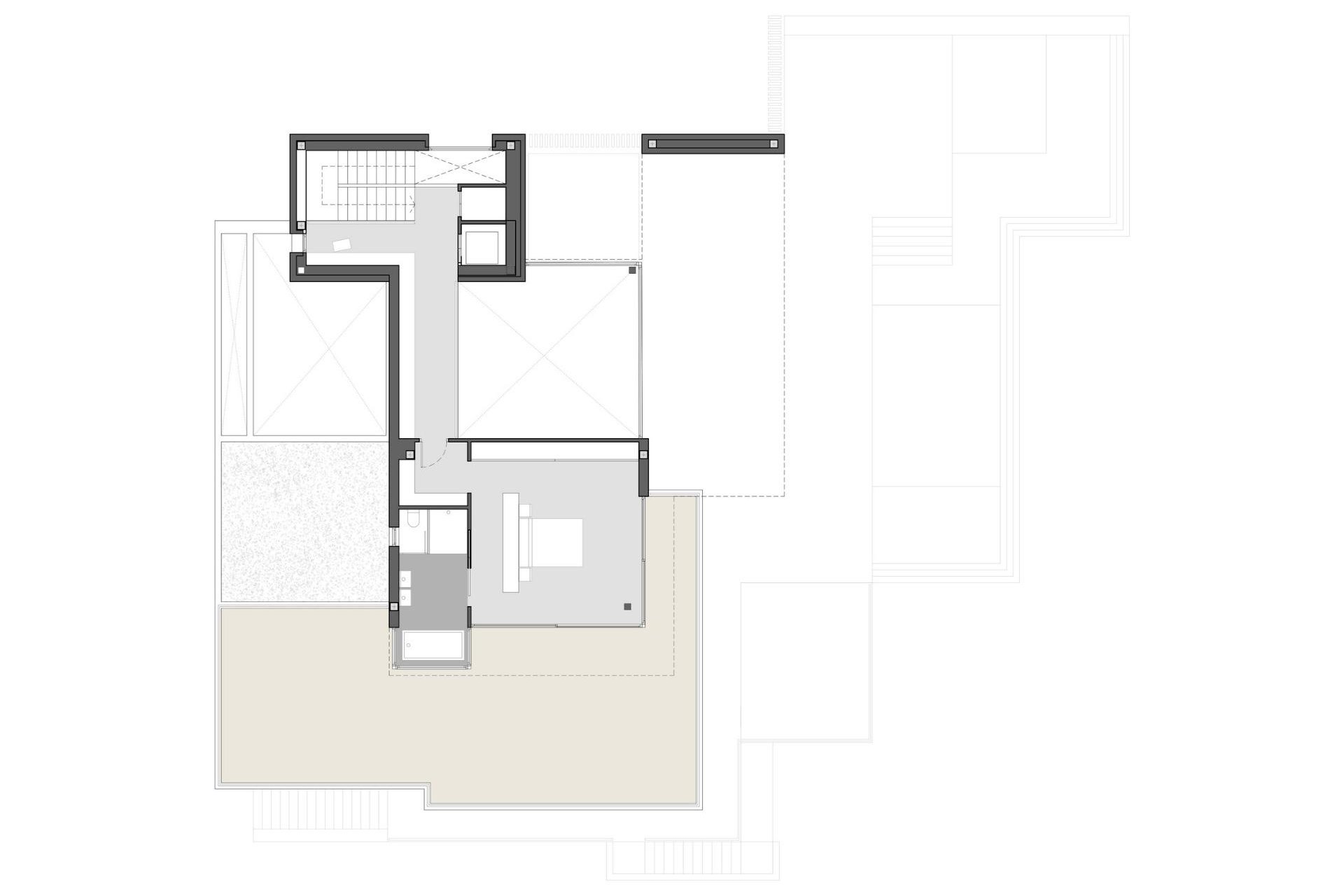
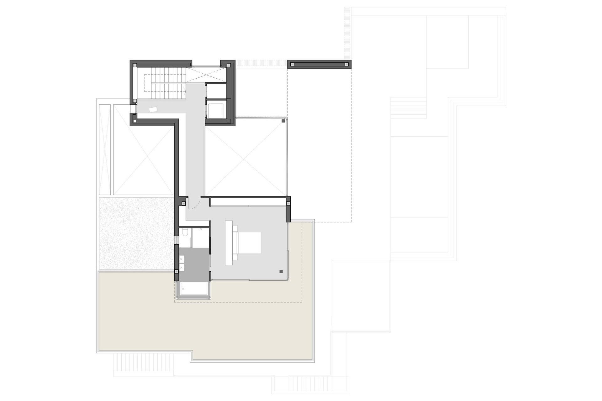
L'étage supérieur est entièrement dédié à l'impressionnante suite parentale, un espace spectaculaire qui couronne la propriété et bénéficie d'une vue panoramique à près de 180 degrés sur le paysage environnant et la mer Méditerranée.
Cette propriété de luxe intègre des matériaux de première qualité et des technologies de pointe dans toute la maison. Elle est notamment équipée de fenêtres Technal avec isolation à l'argon, d'un chauffage au sol et d'une climatisation centralisée avec pompe à chaleur, ainsi que d'un système domotique intelligent Niessen FreeHome avec contrôle individuel de la température par pièce via Airzone.
Parmi les autres caractéristiques, citons un ascenseur reliant les trois niveaux, une buanderie entièrement équipée avec des appareils Miele, une piscine à débordement sans chlore, des panneaux solaires de 4,5 kW, un système d'alarme, un garage souterrain pour deux voitures et une place de parking extérieure supplémentaire.
Emplacement de choix sur la Costa Blanca
Moraira est l’une des villes côtières les plus prisées de la Costa Blanca, réputée pour son charmant port de plaisance, son style de vie méditerranéen décontracté et son excellente gastronomie. La ville offre de magnifiques plages et criques telles que Playa de l’Ampolla, Cala Cap Blanc et l’impressionnante Cala del Moraig.
Les principales distances sont les suivantes : centre-ville de Moraira à 3 km, plage de Playa de l'Ampolla à 3 km, Club de Golf Ifach à 4 km, port de Marina Moraira à 3,5 km, aéroport international d'Alicante à 90 km et aéroport de Valence à 125 km.
Contactez-nous dès aujourd'hui pour plus d'informations ou pour organiser une visite privée de cette propriété exceptionnelle.
649