📍 Grande opportunité commerciale au centre de San Javier
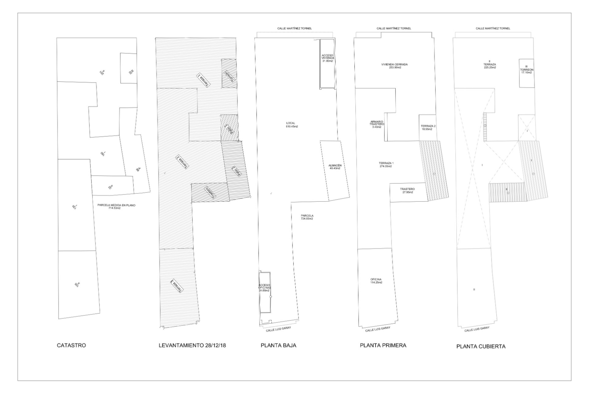
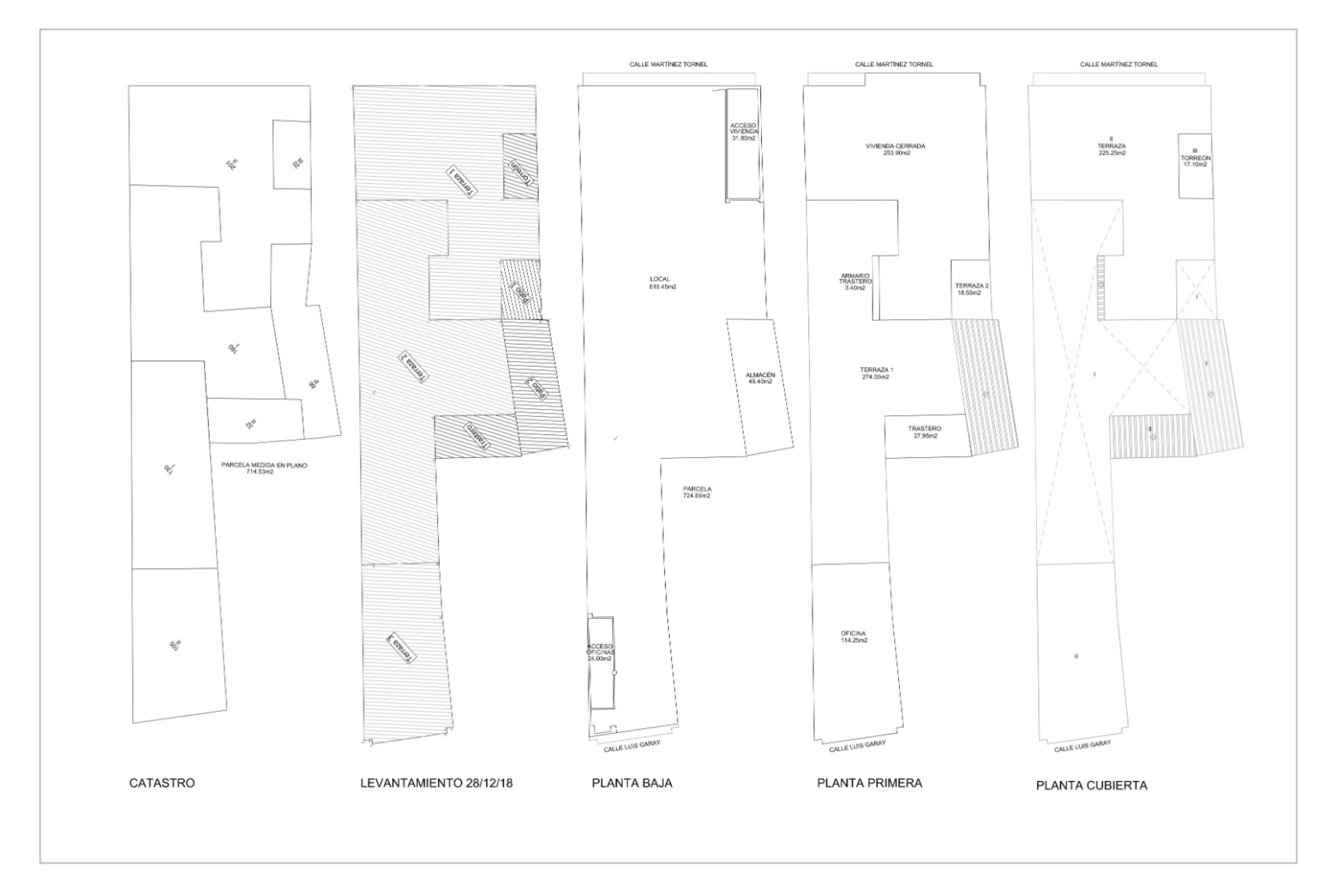
Sur la place principale de San Javier, à proximité immédiate de la mairie, des banques, des supermarchés, de la poste et des restaurants, se trouve ce local commercial exceptionnel d’environ 620 m², avec façades sur deux rues et une visibilité maximale.
Un bien très rare sur le marché grâce à sa surface importante, sa localisation stratégique et le fort passage piéton toute l’année. La place dispose également d’un parking souterrain facilitant l’accès pour les clients.
Pendant plus de 40 ans, une activité familiale y a été exploitée, ce qui confirme le potentiel commercial et la solidité de cet emplacement.
💼 Idéal pour :
• Grandes franchises nationales ou internationales
• Restauration ou concepts gastronomiques innovants
• Supermarché urbain ou épicerie gourmet
• Clinique médicale ou dentaire
• Centre fitness ou bien-être
• Showroom de marque ou commerce spécialisé
San Javier, situé au cœur du Mar Menor, est une zone avec une activité constante toute l’année et une forte croissance touristique et commerciale.
🔎 Possibilité d’étudier une formule de location avec option d’achat pour opérateurs solvables.
🙏 Je vous demande un petit service
Si vous le pouvez, merci de partager cette publication.
🤝 Votre aide peut être très importante
Peut-être qu’entre vos contacts se trouve un entrepreneur, un investisseur, une franchise ou une personne souhaitant ouvrir un commerce à San Javier.
Il peut s’agir de quelqu’un de la mairie, d’une banque, du secteur entrepreneurial ou d’un particulier ayant un projet commercial et recherchant une opportunité comme celle-ci.
📲 Partager cette publication peut aider à trouver le futur projet qui donnera vie à ce grand local.
Pour plus d’informations ou pour organiser une visite :
Montsè Gonzalez
📞 +34 650 023 677