Nouvelle construction » Appartement » Orihu
Agency & AM Property

Orihuela Costa · Playa Flamenca Appartement · Nouvelle construction

REF: NB-62242
365.000€

Orihuela Costa · Playa Flamenca Appartement · Nouvelle construction

NOUVELLE CONSTRUCTION RÉSIDENTIELLE À PLAYA FLAMENCA !!!

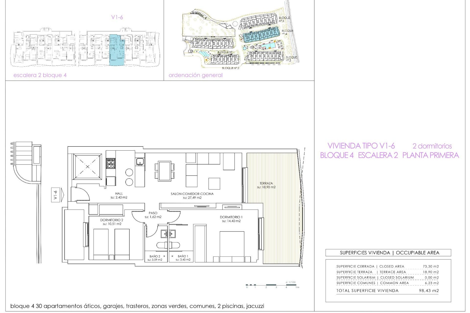
Les caractéristiques

Chambres: 2
Nbr. Sdb: 2
Construit: 73m2
Construits: 65m2
Piscine: Oui
Distance à la plage: 500 Mts.
Elevator/Lift
Communal Pool
Gated
Number of Parking Spaces: 1
Near Schools
Near Commercial Center
Location: Coastal, Urbanisation
Double Bedrooms: 2
Near Trees
Air Conditioning: Pre-Installed
Near Bus Route
Terrace: 18 Msq.
Useable Build Space: 65 Msq.
Beach: 500 Meters
Parking - Space
Storage / Trastero

Emplacement

separador

AGENCY & AM Faire une demande

CONTACTER PAR WHATSAPP
Responsable del tratamiento: Agency M a M, Finalidad del tratamiento: Gestión y control de los servicios ofrecidos a través de la página Web de Servicios inmobiliarios, Envío de información a traves de newsletter y otros, Legitimación: Por consentimiento, Destinatarios: No se cederan los datos, salvo para elaborar contabilidad, Derechos de las personas interesadas: Acceder, rectificar y suprimir los datos, solicitar la portabilidad de los mismos, oponerse altratamiento y solicitar la limitación de éste, Procedencia de los datos: El Propio interesado, Información Adicional: Puede consultarse la información adicional y detallada sobre protección de datos Aquí.
WhatsApp