Nouvelle construction » Bungalow » Rojales
Agency & AM Property

Rojales · Doña Pepa Bungalow · Nouvelle construction

REF: NBS-71454
390.000€

Rojales · Doña Pepa Bungalow · Nouvelle construction

Appartements méditerranéens modernes à Ciudad Quesada, Costa Blanca

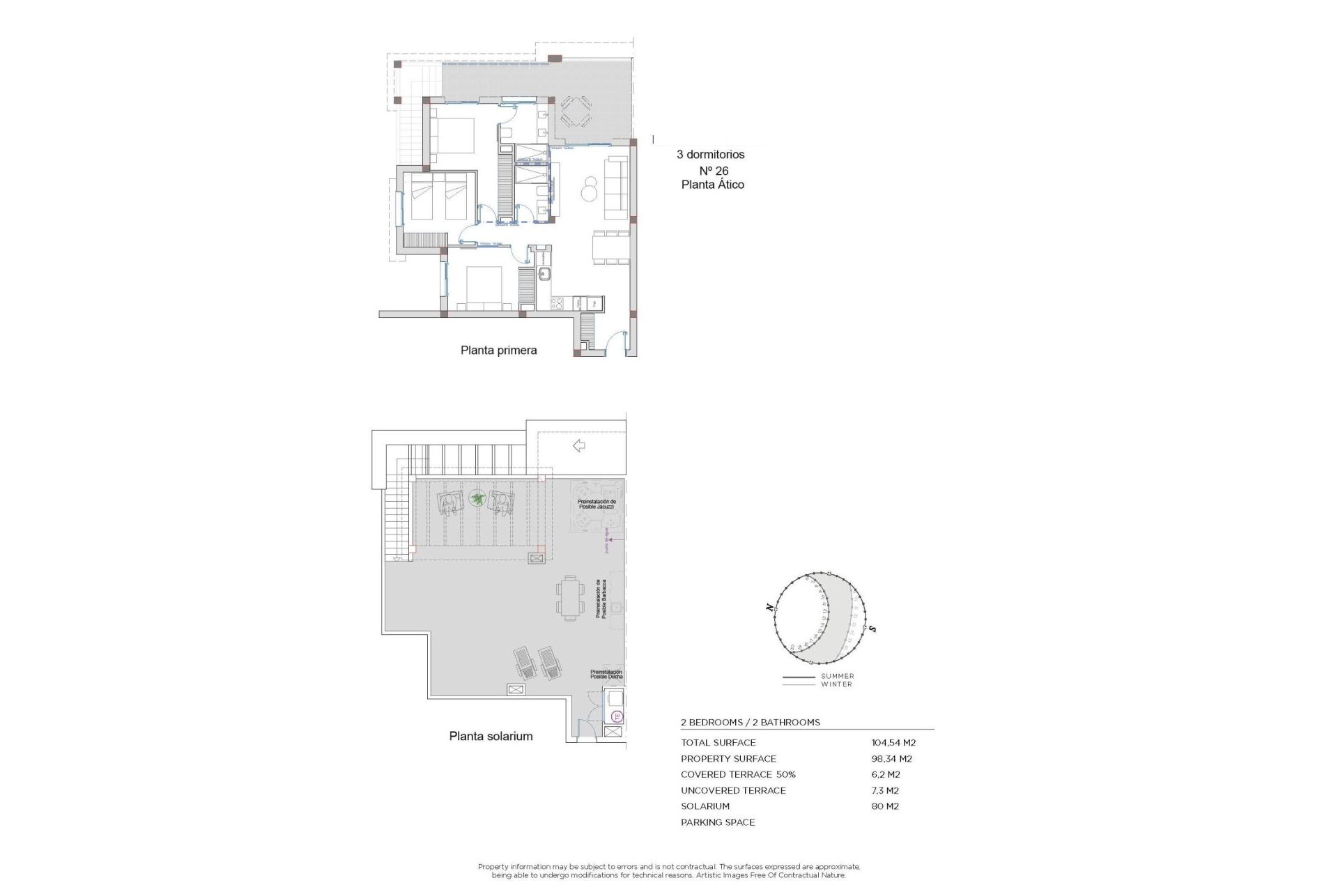
Les caractéristiques

Chambres: 3
Nbr. Sdb: 2
Construit: 108m2
Construits: 102m2
Piscine: Oui
Distance à la plage: 6000 Mts.
Terrace: 105 Msq.
Useable Build Space: 102 Msq.
Storage / Trastero
Communal Pool
Gated
Number of Parking Spaces: 1
Near Schools
Near Commercial Center
Solarium: Yes
Location: Rural, Urbanisation
Double Bedrooms: 3
Air Conditioning: Pre-Installed
Beach: 6000 Meters
Parking - Space

Emplacement

separador

AGENCY & AM Faire une demande

CONTACTER PAR WHATSAPP
Responsable del tratamiento: Agency M a M, Finalidad del tratamiento: Gestión y control de los servicios ofrecidos a través de la página Web de Servicios inmobiliarios, Envío de información a traves de newsletter y otros, Legitimación: Por consentimiento, Destinatarios: No se cederan los datos, salvo para elaborar contabilidad, Derechos de las personas interesadas: Acceder, rectificar y suprimir los datos, solicitar la portabilidad de los mismos, oponerse altratamiento y solicitar la limitación de éste, Procedencia de los datos: El Propio interesado, Información Adicional: Puede consultarse la información adicional y detallada sobre protección de datos Aquí.
WhatsApp