Villas méditerranéennes durables à vendre à Macenas, Almería
Découvrez l'essence même de la vie méditerranéenne avec ce nouveau projet immobilier de villas exclusives à Macenas, Almería. Situées dans un complexe résidentiel sécurisé à seulement 600 mètres de la plage et entourées d'un paysage naturel préservé, ces maisons sont idéales pour ceux qui recherchent détente, élégance et durabilité en bord de mer.
Une vie exclusive dans un complexe près de la Méditerranée
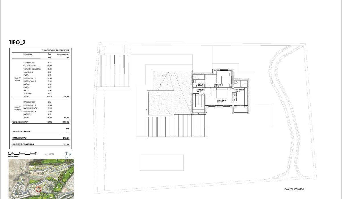
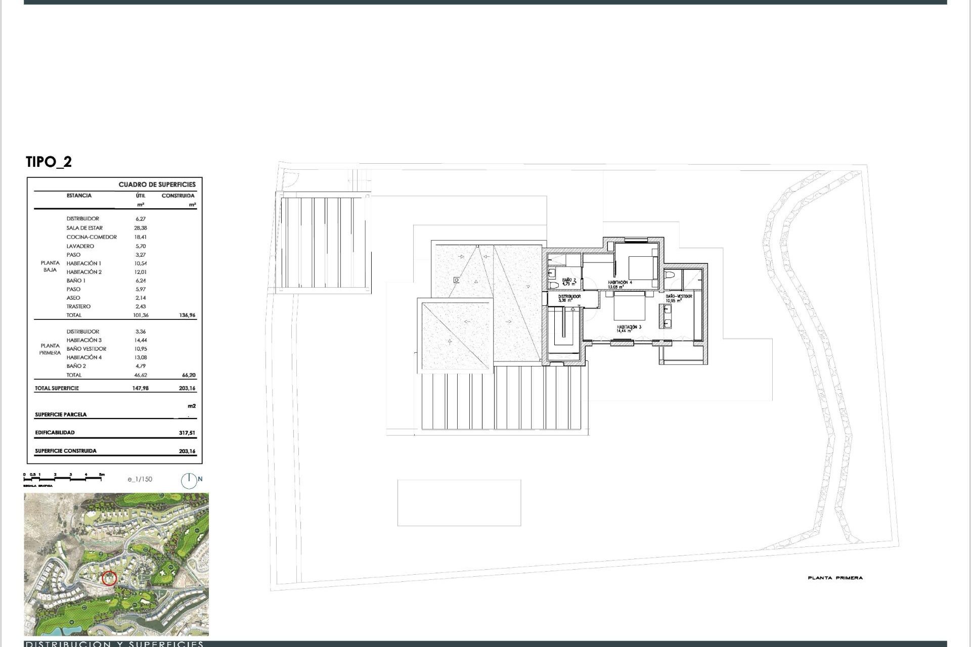
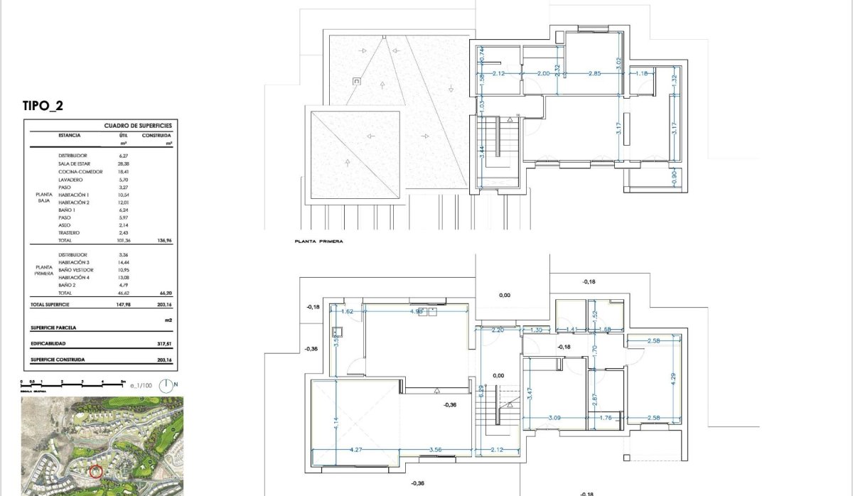
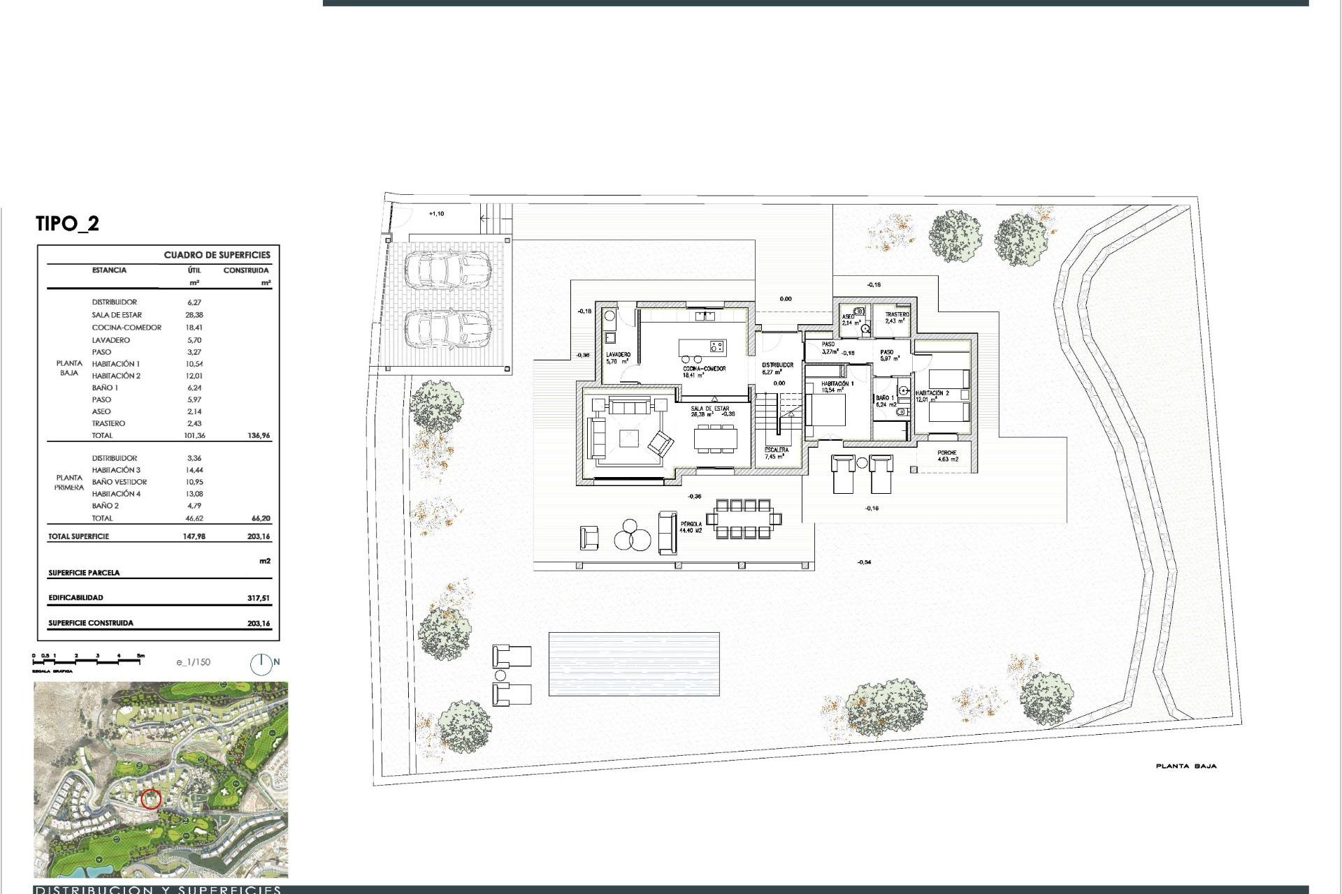
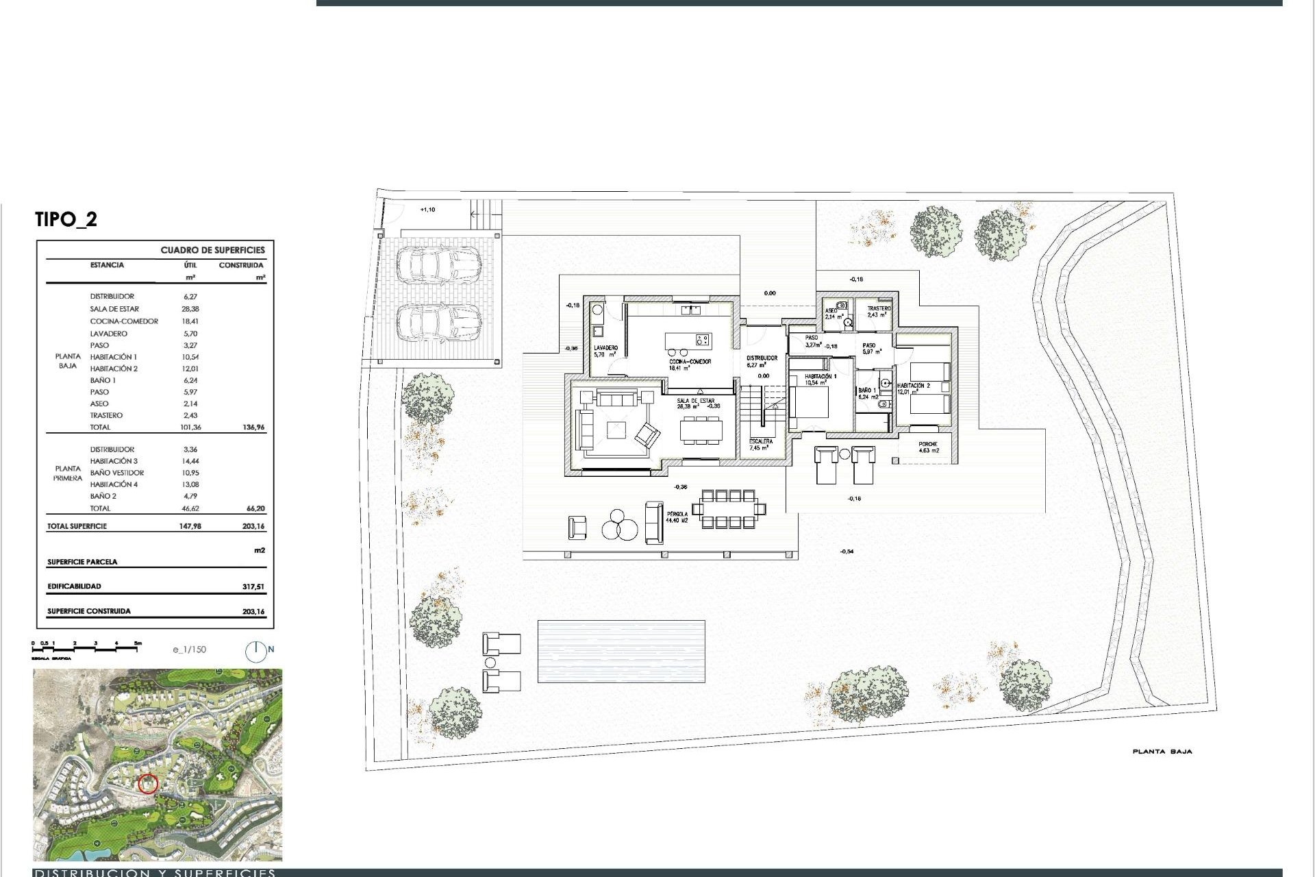
Ce nouveau projet résidentiel propose des villas individuelles de 3 ou 4 chambres sur des terrains spacieux. Situées dans un complexe privé sur la côte d'Almería, chaque maison dispose de terrasses spacieuses avec une vue imprenable sur la mer ou le golf, idéales pour profiter du climat doux toute l'année. Le complexe est situé à seulement 6 km de Mojácar Pueblo, un charmant village connu pour ses maisons blanchies à la chaux et son patrimoine culturel.
Un design moderne avec une touche méditerranéenne
Ces villas allient une architecture contemporaine à des touches méditerranéennes traditionnelles, s'intégrant harmonieusement dans le paysage naturel de Macenas. Construites avec des matériaux durables et un aménagement paysager autochtone à faible consommation d'eau, le projet favorise un mode de vie respectueux de l'environnement. Un futur parcours de golf 18 trous intégré à l'environnement est également prévu, ce qui ajoutera une valeur à long terme à la communauté.
Équipements haut de gamme et systèmes à haute efficacité
Chaque villa est équipée d'une cuisine SANTOS entièrement équipée et personnalisable avec des appareils électroménagers haut de gamme. La climatisation est assurée par un système de climatisation centralisée et un chauffage au sol alimenté par un système aérothermique à haute efficacité énergétique. Le système de zonage intelligent Airzone garantit un confort thermique maximal dans toute la maison.
Les équipements supplémentaires comprennent :
Menuiserie extérieure en aluminium Technal avec rupture de pont thermique
Volets en aluminium motorisés et réglables
Piscine privée de 7,5 m x 3,2 m
Pergola en aluminium laqué
Options supplémentaires telles que cheminée, cuisine d'été et ensembles de meubles sur mesure
Emplacement privilégié et points d'intérêt à proximité
Plage de Macenas – 600 m
Mojácar Pueblo – 6 km
Marina de la Torre Golf – 9 km
Parc naturel de Cabo de Gata – 30 km
Ville d'Almería – 88 km
Aéroport d'Almería – 77 km
Votre escapade méditerranéenne vous attend
Que vous recherchiez une résidence permanente, une maison de vacances ou un investissement solide, ces villas méditerranéennes durables à Macenas offrent un style de vie incomparable sur la côte d'Almería. Contactez-nous dès aujourd'hui pour en savoir plus ou pour planifier une visite.
649