Maison moderne de luxe au cœur de Moraira-Teulada : une retraite méditerranéenne contemporaine
Découvrez une superbe maison individuelle nichée dans la ville pittoresque de Moraira-Teulada, sur la Costa Blanca. Cette propriété moderne offre une combinaison exquise de luxe, de confort et de beauté naturelle, sur un terrain généreux qui offre à la fois de l'intimité et des vues panoramiques sur le paysage méditerranéen environnant. Moraira-Teulada est réputée pour son atmosphère côtière charmante, sa culture locale dynamique et son accès facile aux principales commodités.
Excellence architecturale et vues panoramiques
Cette maison architecturale est un chef-d'œuvre moderne qui s'intègre harmonieusement à l'environnement naturel. Construite en béton armé et agrémentée de détails en bois, la maison intègre de grands panneaux de verre pour maximiser la lumière naturelle et encadrer des vues à couper le souffle sur la mer et la verdure luxuriante. La maison est construite sur plusieurs terrasses, complétant la pente naturelle du terrain et offrant des vues dégagées sous tous les angles.
Un aménagement intérieur spacieux pour une vie élégante
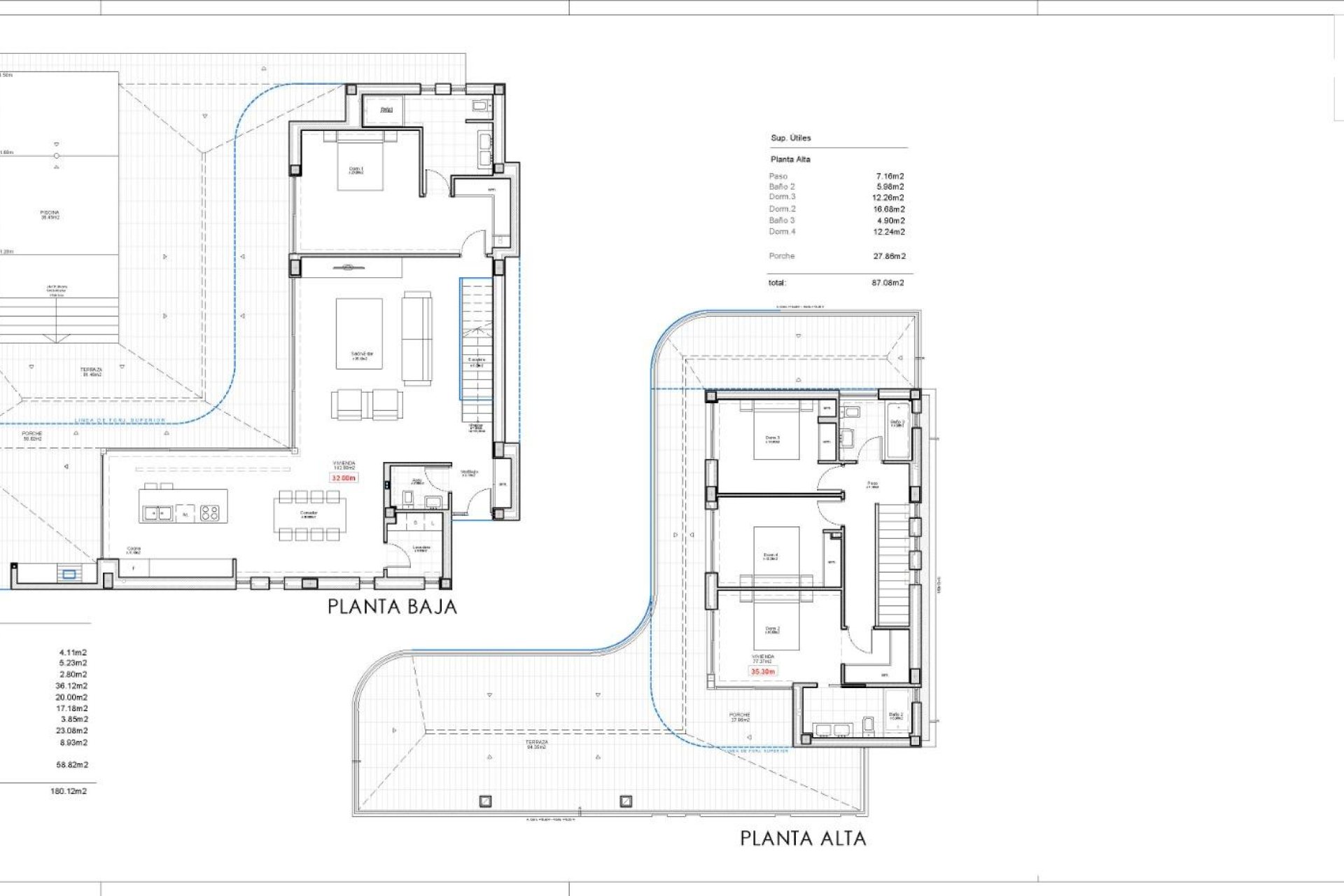
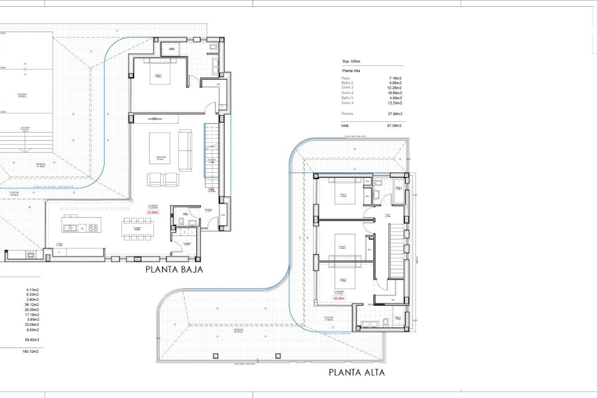
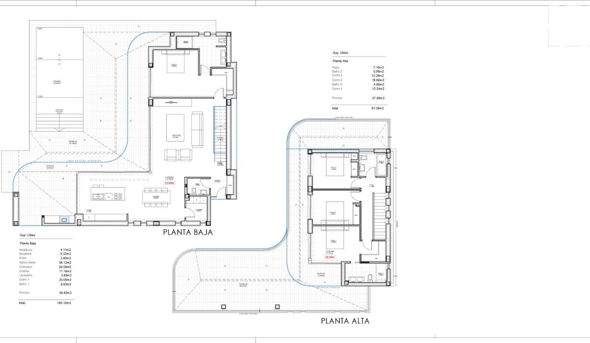
Le rez-de-chaussée est le cœur de cette maison, avec un vaste espace de vie ouvert de 36 m² qui communique avec une vaste terrasse extérieure de 81 m². La cuisine haut de gamme et la salle à manger, d'une superficie de 20 m², sont équipées d'appareils électroménagers de pointe, ce qui les rend idéales pour la vie quotidienne et les réceptions. À l'étage, la suite parentale offre une intimité totale avec un dressing, une salle de bains attenante et un accès à une terrasse privée. Trois autres chambres, chacune avec sa propre salle de bains et sa terrasse, offrent un confort luxueux aux membres de la famille ou aux invités.
Des espaces extérieurs exceptionnels et une piscine à débordement
Les espaces extérieurs sont conçus pour la détente et le divertissement, avec notamment une vaste terrasse de 81 m², idéale pour les repas en plein air ou pour se prélasser sous le soleil méditerranéen. La terrasse mène à une superbe piscine à débordement qui se fond dans l'horizon, créant une oasis de paix. Le jardin soigneusement aménagé, rempli de plantes et d'arbres indigènes, renforce l'ambiance sereine de la maison et offre une intimité supplémentaire.
Caractéristiques durables et économes en énergie
Cette propriété est équipée de dispositifs durables, notamment d'une pompe à chaleur air-eau de pointe, d'un chauffage par le sol et d'un système de climatisation par canalisation. Des fenêtres et une isolation performantes garantissent l'efficacité énergétique et le confort tout au long de l'année.
Emplacement privilégié à proximité des principales commodités
Aéroport d'Alicante : 90 km
Terrain de golf La Sella : 15 km
Port de Moraira : 2 km
Centres commerciaux : 5 km
Découvrez le luxe moderne et la tranquillité dans cette maison exceptionnelle, parfaitement située dans la région recherchée de Moraira-Teulada.
649