Nouvelle construction » Villa » Finestrat &
Agency & AM Property

Finestrat · Balcón De Finestrat Villa · Nouvelle construction

REF: NBS-54841
840.000€

Finestrat · Balcón De Finestrat Villa · Nouvelle construction

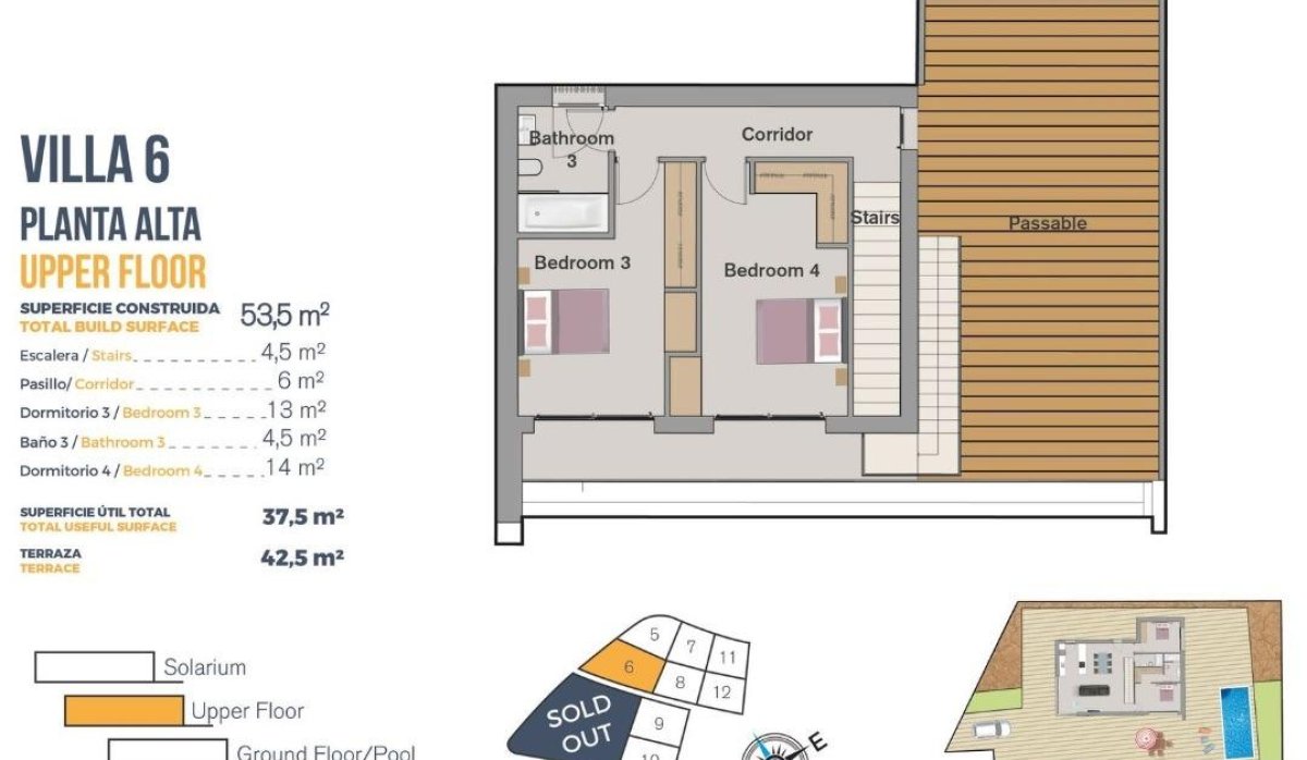
  • Construit 168m2
  • Intrigue 532m2
  • Chambres 4
  • Nbr. Sdb 4
  • Piscine Oui
  • PDF/Imprimer

VILLAS DE NOUVELLE CONSTRUCTION À BALCON DE FINESTRAT

Les caractéristiques

Chambres: 4
Nbr. Sdb: 4
Construit: 168m2
Construits: 125m2
Terrain: 532m2
Piscine: Oui
Distance à la plage: 5500 Mts.
Private pool
Gated
Number of Parking Spaces: 1
Near Golf / Golf Resort Property
Near Schools
Near Commercial Center
Garden
Air Conditioning: Pre-Installed
Near Bus Route
Double Bedrooms: 4
Useable Build Space: 125 Msq.
Under-Build / Basement
Beach: 5500 Meters
Location: Mountain, Urbanisation
Parking - Space
Terrace: 96 Msq.
Solarium: 53 Msq.

Emplacement

separador

AGENCY & AM Faire une demande

CONTACTER PAR WHATSAPP
Responsable del tratamiento: Agency M a M, Finalidad del tratamiento: Gestión y control de los servicios ofrecidos a través de la página Web de Servicios inmobiliarios, Envío de información a traves de newsletter y otros, Legitimación: Por consentimiento, Destinatarios: No se cederan los datos, salvo para elaborar contabilidad, Derechos de las personas interesadas: Acceder, rectificar y suprimir los datos, solicitar la portabilidad de los mismos, oponerse altratamiento y solicitar la limitación de éste, Procedencia de los datos: El Propio interesado, Información Adicional: Puede consultarse la información adicional y detallada sobre protección de datos Aquí.
WhatsApp