Nouvelle construction » Attique » Torreviej
Agency & AM Property

Torrevieja · Centro Attique · Nouvelle construction

REF: NB-43672
349.000€

Torrevieja · Centro Attique · Nouvelle construction

Appartements neufs au cœur de Torrevieja À seulement 400 m de Playa del Cura

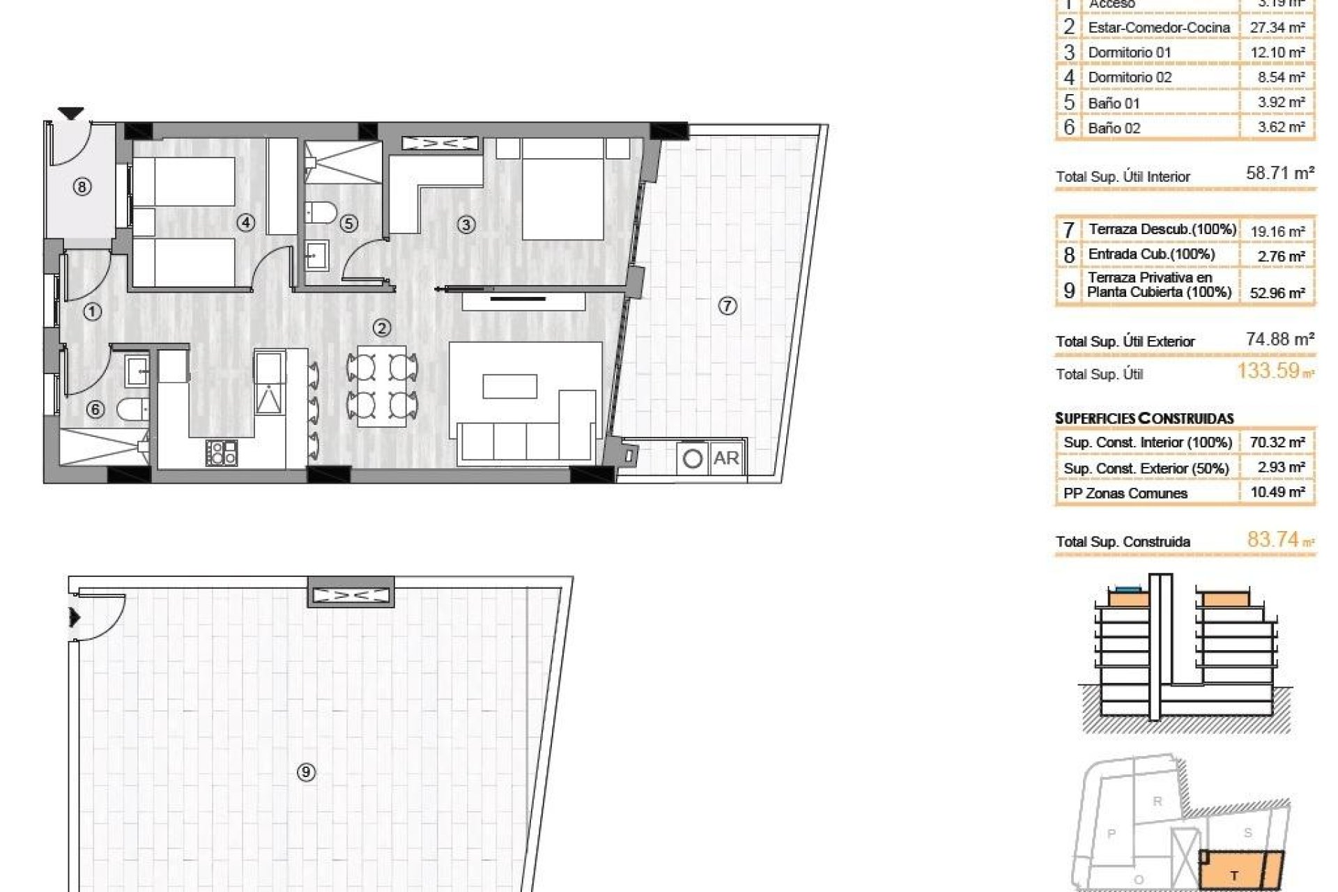
Les caractéristiques

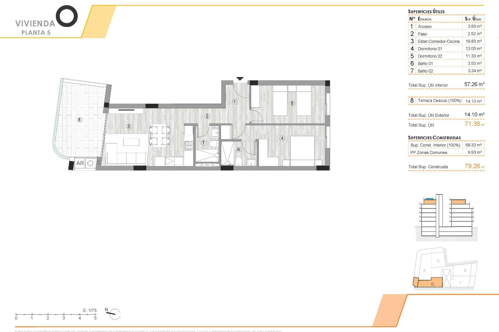
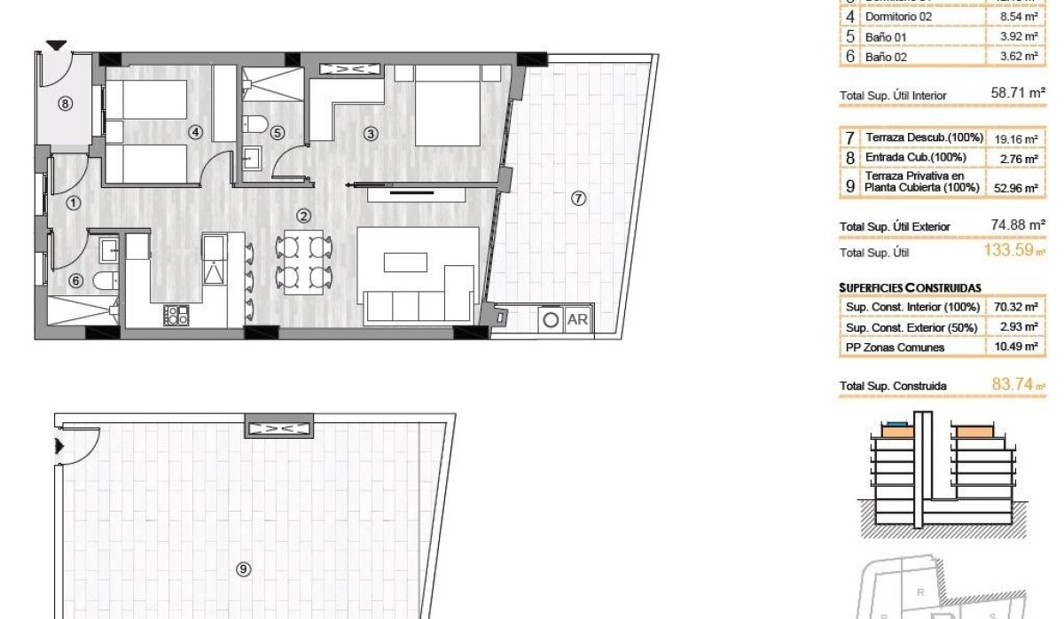
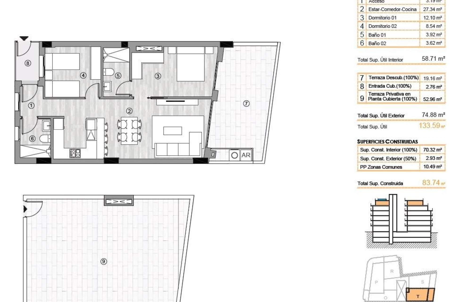
Chambres: 2
Nbr. Sdb: 2
Construit: 133m2
Construits: 83m2
Piscine: Oui
Distance à la plage: 400 Mts.
Elevator/Lift
Communal Pool
Gated
Near Schools
Near Commercial Center
Double Bedrooms: 2
Near Childrens Parks
Air Conditioning: Pre-Installed
Gym
Near Bus Route
Location: Coastal
Useable Build Space: 83 Msq.
Terrace: 72 Msq.
Beach: 400 Meters
Parking - Space
Solarium: 53 Msq.

Emplacement

separador

AGENCY & AM Faire une demande

CONTACTER PAR WHATSAPP
Responsable del tratamiento: Agency M a M, Finalidad del tratamiento: Gestión y control de los servicios ofrecidos a través de la página Web de Servicios inmobiliarios, Envío de información a traves de newsletter y otros, Legitimación: Por consentimiento, Destinatarios: No se cederan los datos, salvo para elaborar contabilidad, Derechos de las personas interesadas: Acceder, rectificar y suprimir los datos, solicitar la portabilidad de los mismos, oponerse altratamiento y solicitar la limitación de éste, Procedencia de los datos: El Propio interesado, Información Adicional: Puede consultarse la información adicional y detallada sobre protección de datos Aquí.
WhatsApp