Nouvelle construction » Appartement » Torre
Agency & AM Property

Torrevieja · Playa de El Cura Appartement · Nouvelle construction

REF: NB-19258
287.000€

Torrevieja · Playa de El Cura Appartement · Nouvelle construction

Appartements modernes à vendre à seulement 250 m de la plage El Cura à Torrevieja, Costa Blanca

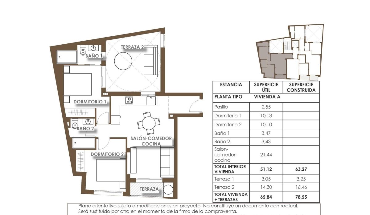
Les caractéristiques

Chambres: 2
Nbr. Sdb: 2
Construit: 63m2
Construits: 55m2
Piscine: Oui
Distance à la plage: 250 Mts.
Elevator/Lift
Communal Pool
Near Schools
Near Commercial Center
Double Bedrooms: 2
Air Conditioning: Pre-Installed
Near Bus Route
Space
Useable Build Space: 55 Msq.
Terrace: 19 Msq.
Beach: 250 Meters

Emplacement

separador

AGENCY & AM Faire une demande

CONTACTER PAR WHATSAPP
Responsable del tratamiento: Agency M a M, Finalidad del tratamiento: Gestión y control de los servicios ofrecidos a través de la página Web de Servicios inmobiliarios, Envío de información a traves de newsletter y otros, Legitimación: Por consentimiento, Destinatarios: No se cederan los datos, salvo para elaborar contabilidad, Derechos de las personas interesadas: Acceder, rectificar y suprimir los datos, solicitar la portabilidad de los mismos, oponerse altratamiento y solicitar la limitación de éste, Procedencia de los datos: El Propio interesado, Información Adicional: Puede consultarse la información adicional y detallada sobre protección de datos Aquí.
WhatsApp