Villa neuve à Rojales – Design moderne et emplacement privilégié
Découvrez cette superbe villa neuve à Ciudad Quesada, Rojales, conçue avec un équilibre parfait entre style, confort et fonctionnalité. Entourée par la nature et proche de tous les services essentiels, cette maison est un choix idéal pour ceux qui recherchent une vie de qualité au cœur de la Costa Blanca.
Aménagement spacieux avec des équipements haut de gamme
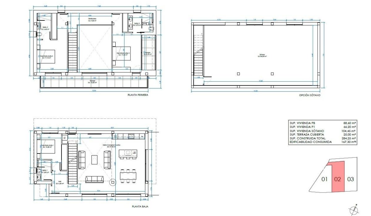
Cette villa a été soigneusement conçue pour maximiser la lumière naturelle et les espaces ouverts. Elle comprend :
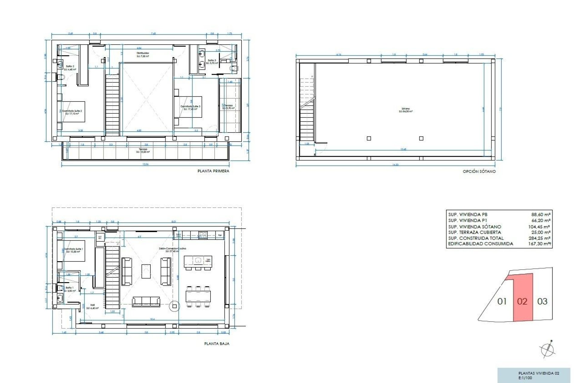
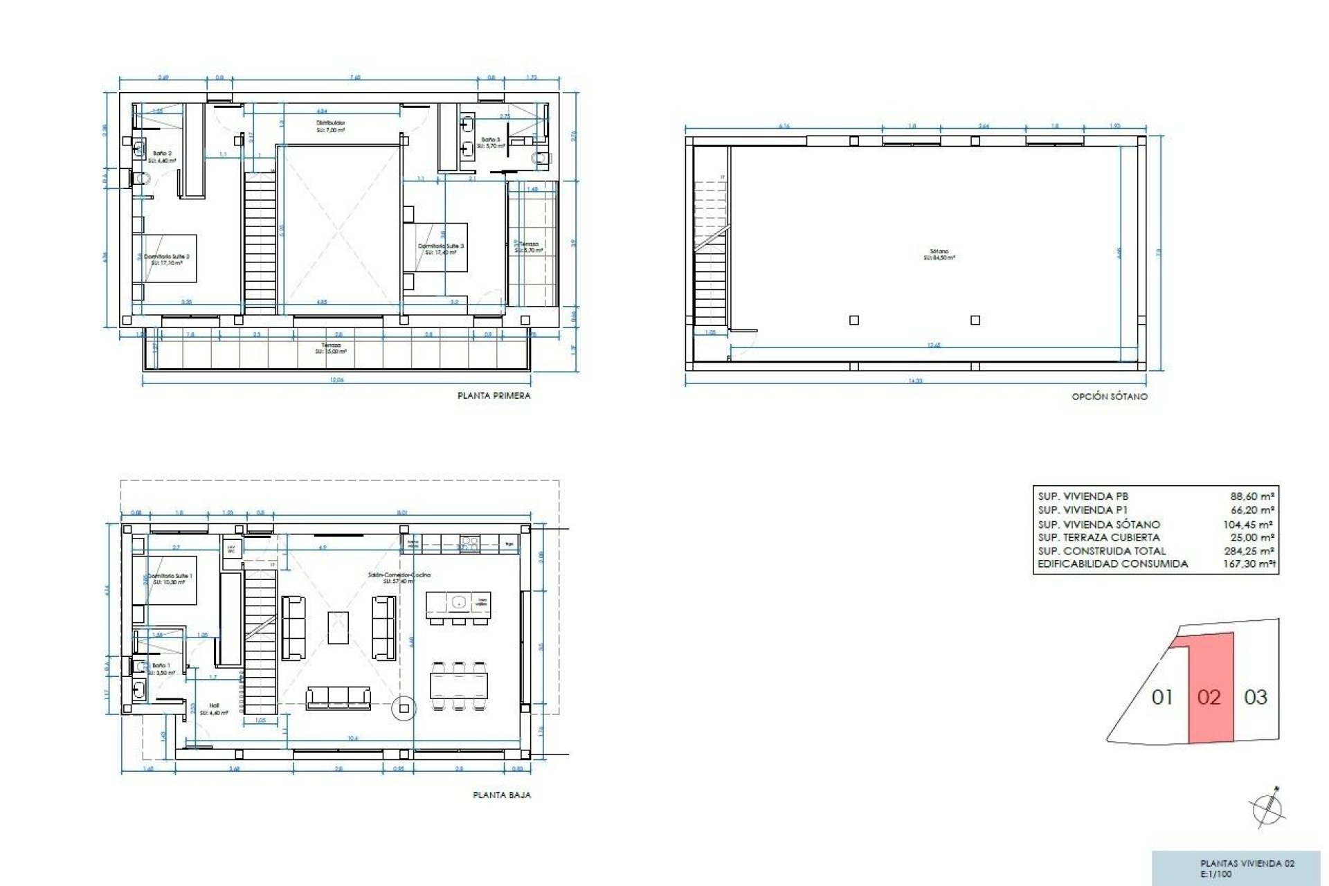
Un grand sous-sol avec une excellente ventilation et une lumière naturelle, idéal pour de multiples usages.
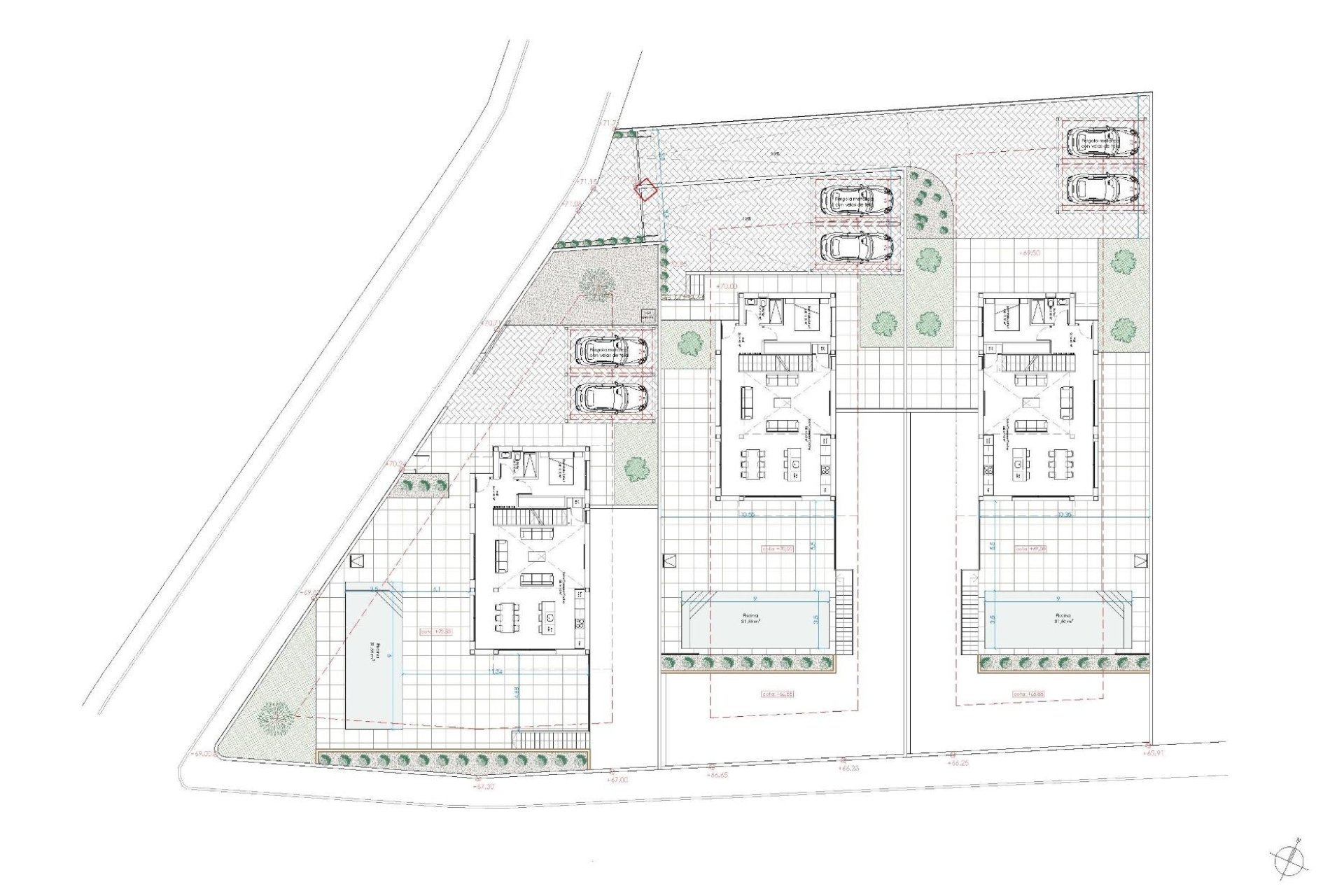
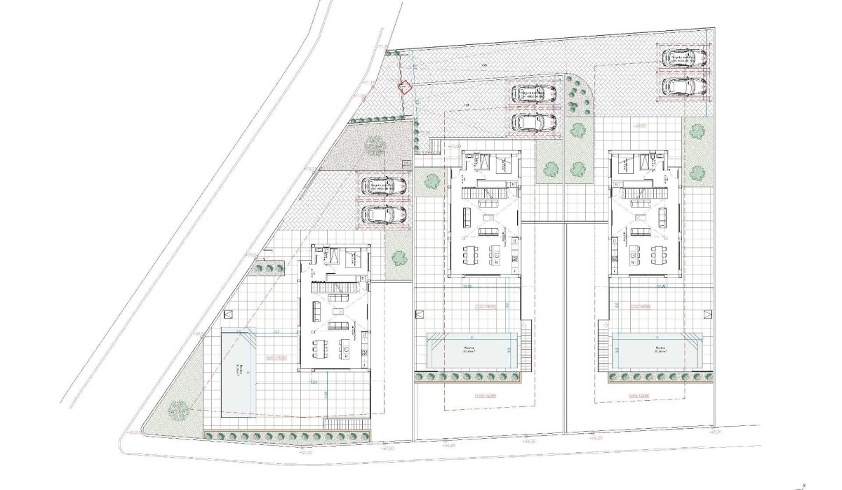
Rez-de-chaussée avec un salon double hauteur, une cuisine ouverte avec îlot, une chambre et une salle de bains.
Étage supérieur avec deux chambres en suite, chacune avec accès à des terrasses privées.
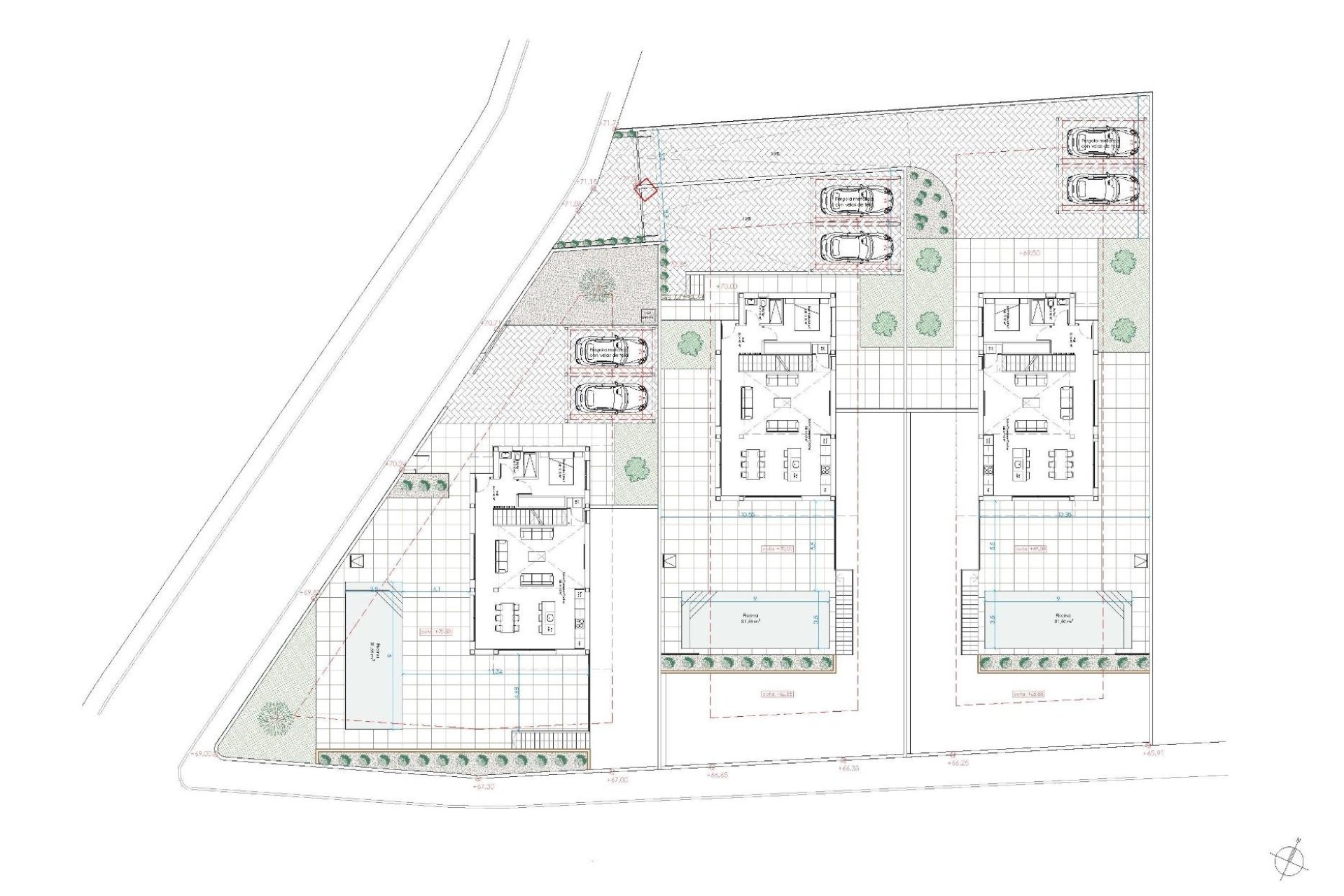
La villa offre également une piscine privée de 9 x 3,5 m, des jardins paysagers et plusieurs terrasses pour se détendre en plein air.
Finitions de qualité et confort moderne
Construite avec des matériaux haut de gamme, cette propriété est équipée de :
Salles de bains entièrement équipées avec miroirs
Climatisation centralisée
Chauffage au sol dans les salles de bains
Système d'eau chaude aérothermique
Parking pour plusieurs véhicules
Emplacement privilégié à Rojales
Située dans la charmante ville de Rojales, cette villa bénéficie de la proximité des services essentiels tels que supermarchés, pharmacies, banques, restaurants et parcs naturels. À seulement 10 minutes du golf La Marquesa, l'un des plus prestigieux de la Costa Blanca, les résidents peuvent profiter d'une expérience de golf exceptionnelle, entourés de tradition et de qualité.
Excellente connectivité et attractions à proximité
Rojales est stratégiquement situé et offre d'excellentes liaisons routières :
La Marquesa Golf – 3 km
Plages de Guardamar del Segura – 8 km
Torrevieja – 12 km
Aéroport d'Alicante – 40 km
Aéroport de Murcie – 55 km
De plus, les autoroutes N-332 et AP-7 permettent d'accéder rapidement aux villes voisines, aux centres commerciaux, aux marinas et aux attractions culturelles.
Faites de Rojales votre nouveau chez-vous
Que vous recherchiez une résidence permanente, une maison de vacances ou un investissement sûr, cette villa neuve à Ciudad Quesada offre tout ce dont vous avez besoin pour profiter d'un style de vie méditerranéen. Contactez-nous dès aujourd'hui pour obtenir plus de détails et planifier votre visite privée.