Nouvelle construction » Villa » Fuente Álam
Agency & AM Property

Fuente Álamo · Las Palas Villa · Nouvelle construction

REF: NB-66637
320.000€

Fuente Álamo · Las Palas Villa · Nouvelle construction

VILLA CLÉ EN MAIN À FUENTE ALAMO, MURCIA

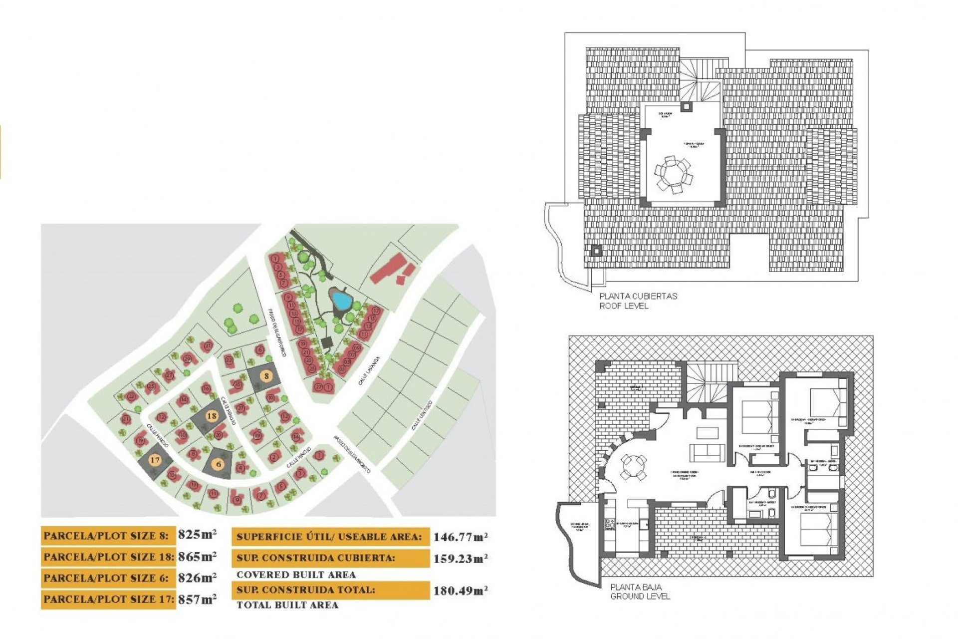
Les caractéristiques

Chambres: 3
Nbr. Sdb: 2
Construit: 180m2
Construits: 144m2
Terrain: 850m2
Distance à la plage: 7500 Mts.
Useable Build Space: 144 Msq.
Beach: 7500 Meters
Terrace: 45 Msq.
Parking - Space
Location: Rural
Storage / Trastero
Gated
Number of Parking Spaces: 1
Garden
Key Ready
Solarium: Yes
Double Bedrooms: 3
Air Conditioning: Pre-Installed

Emplacement

separador

AGENCY & AM Faire une demande

CONTACTER PAR WHATSAPP
Responsable del tratamiento: Agency M a M, Finalidad del tratamiento: Gestión y control de los servicios ofrecidos a través de la página Web de Servicios inmobiliarios, Envío de información a traves de newsletter y otros, Legitimación: Por consentimiento, Destinatarios: No se cederan los datos, salvo para elaborar contabilidad, Derechos de las personas interesadas: Acceder, rectificar y suprimir los datos, solicitar la portabilidad de los mismos, oponerse altratamiento y solicitar la limitación de éste, Procedencia de los datos: El Propio interesado, Información Adicional: Puede consultarse la información adicional y detallada sobre protección de datos Aquí.
WhatsApp