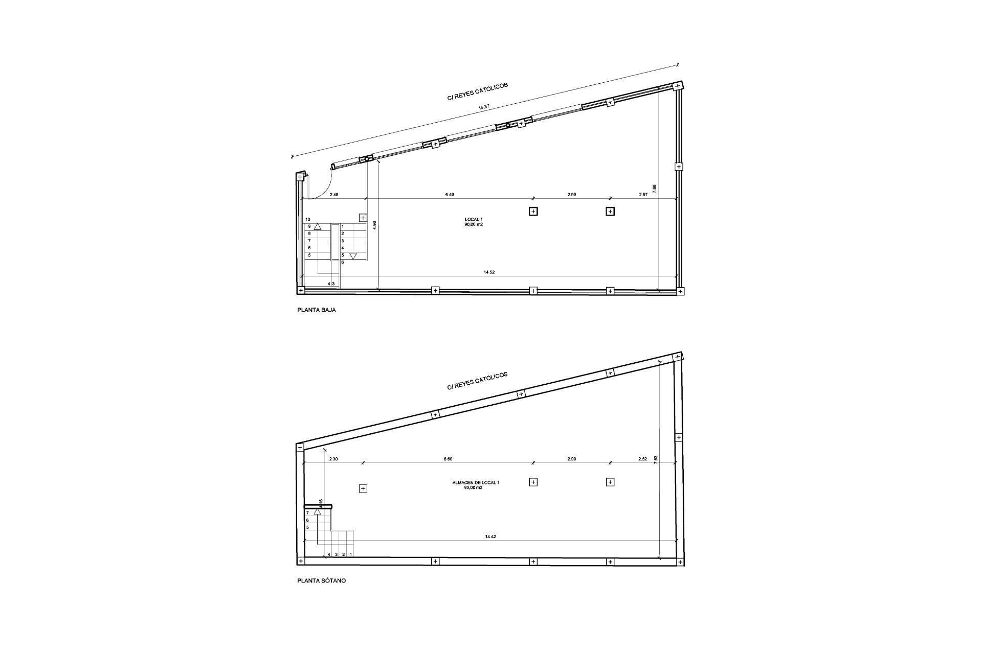
Nouvelle unité commerciale à vendre à Los Montesinos. Il est vendu tel quel, sous sa forme de base, prêt à être fini dans le style exactement comme vous le souhaitez. Il y a aussi la possibilité de convertir cette unité en une maison très spacieuse à vivre. L'entrée principale est légèrement surélevée et il y a quatre grandes fenêtres à l'avant de l'unité, laissant entrer beaucoup de lumière naturelle. Le rez-de-chaussée de la propriété fait 97m2, ce qui est une grande taille, que vous souhaitiez en faire un usage commercial ou habitable. Juste à l'entrée, un escalier mène au demi-sous-sol. Le demi-sous-sol a une superficie de 85m2 et peut être utilisé pour le stockage, ou également pour faire partie de la maison si vous le souhaitez pour une utilisation habitable. Il y a des fenêtres minces dans la partie supérieure qui permettent à la lumière naturelle d'entrer, comme vous pouvez le voir sur les photos extérieures. Une propriété avec beaucoup de potentiel, peu importe l'usage que vous comptez en faire!