Obra nueva » Ático » Villajoyosa » Pl
Agency & AM Property

Villajoyosa · Playa Les Torres Ático · Obra nueva

REF: NB-67228
830.000€

Villajoyosa · Playa Les Torres Ático · Obra nueva

MARAVILLOSO ATICO A 50M DE LA PLAYA

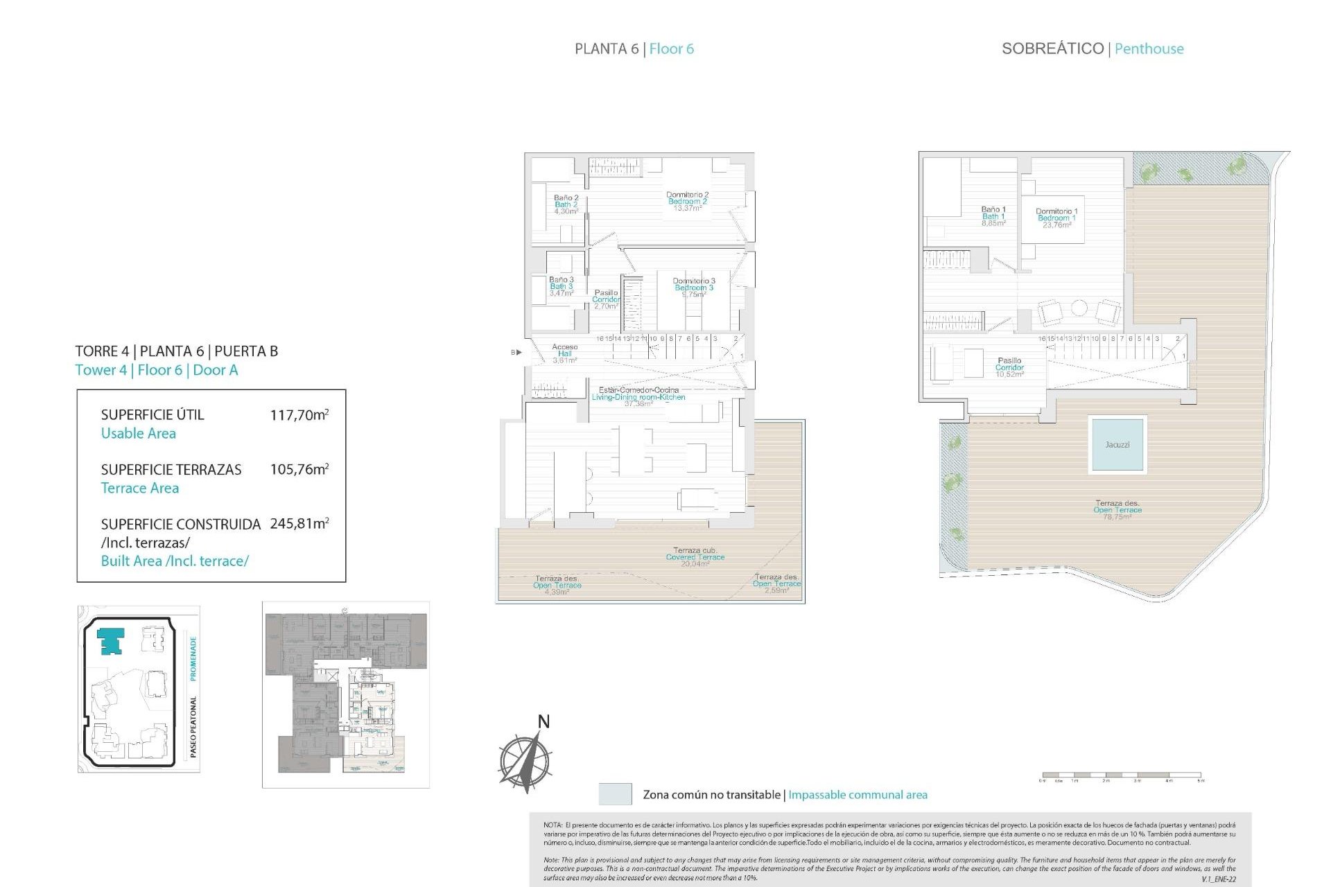
Características

Habitaciones: 3
Baños: 2
Construidos: 128m2
Útiles: 117m2
Piscina:
Distancia a la playa: 50 Mts.
Storage / Trastero
Elevator/Lift
Communal Pool
Gated
Number of Parking Spaces: 1
First Line to the Sea
Views: Sea
Near Schools
Near Commercial Center
Location: Coastal, Urbanisation
Key Ready
Solarium: Yes
Double Bedrooms: 3
Air Conditioning: Pre-Installed
Beach: 50 Meters
Useable Build Space: 117 Msq.
Parking - Space
Terrace: 105 Msq.

Localización

separador

AGENCY & AM Realizar una consulta

CONTACTAR POR WHATSAPP
Responsable del tratamiento: Agency M a M, Finalidad del tratamiento: Gestión y control de los servicios ofrecidos a través de la página Web de Servicios inmobiliarios, Envío de información a traves de newsletter y otros, Legitimación: Por consentimiento, Destinatarios: No se cederan los datos, salvo para elaborar contabilidad, Derechos de las personas interesadas: Acceder, rectificar y suprimir los datos, solicitar la portabilidad de los mismos, oponerse altratamiento y solicitar la limitación de éste, Procedencia de los datos: El Propio interesado, Información Adicional: Puede consultarse la información adicional y detallada sobre protección de datos Aquí.
WhatsApp