Obra nueva » Bungalow » Torrevieja »
Agency & AM Property

Torrevieja · Los Balcones Bungalow · Obra nueva

REF: NB-55191
340.000€

Torrevieja · Los Balcones Bungalow · Obra nueva

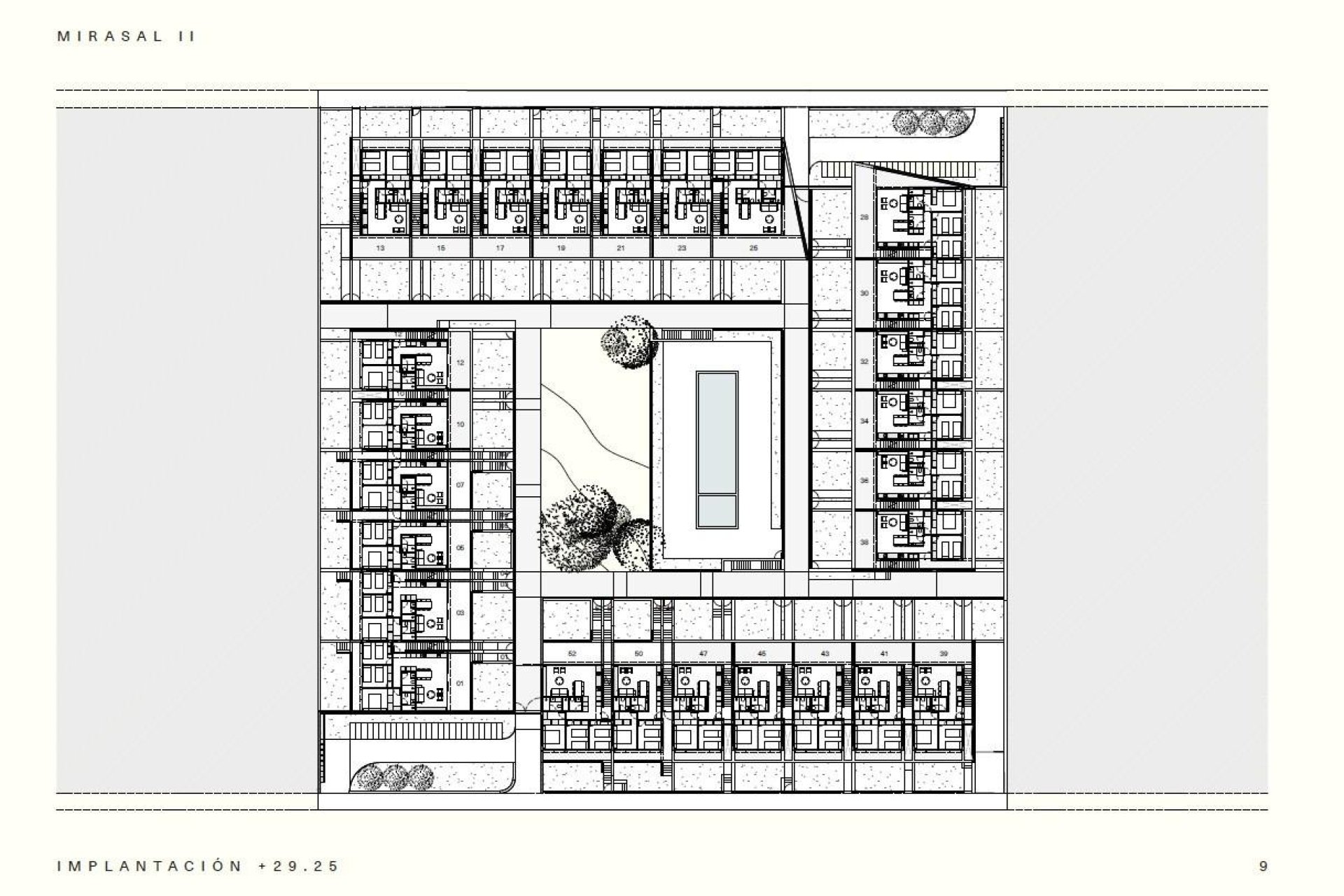
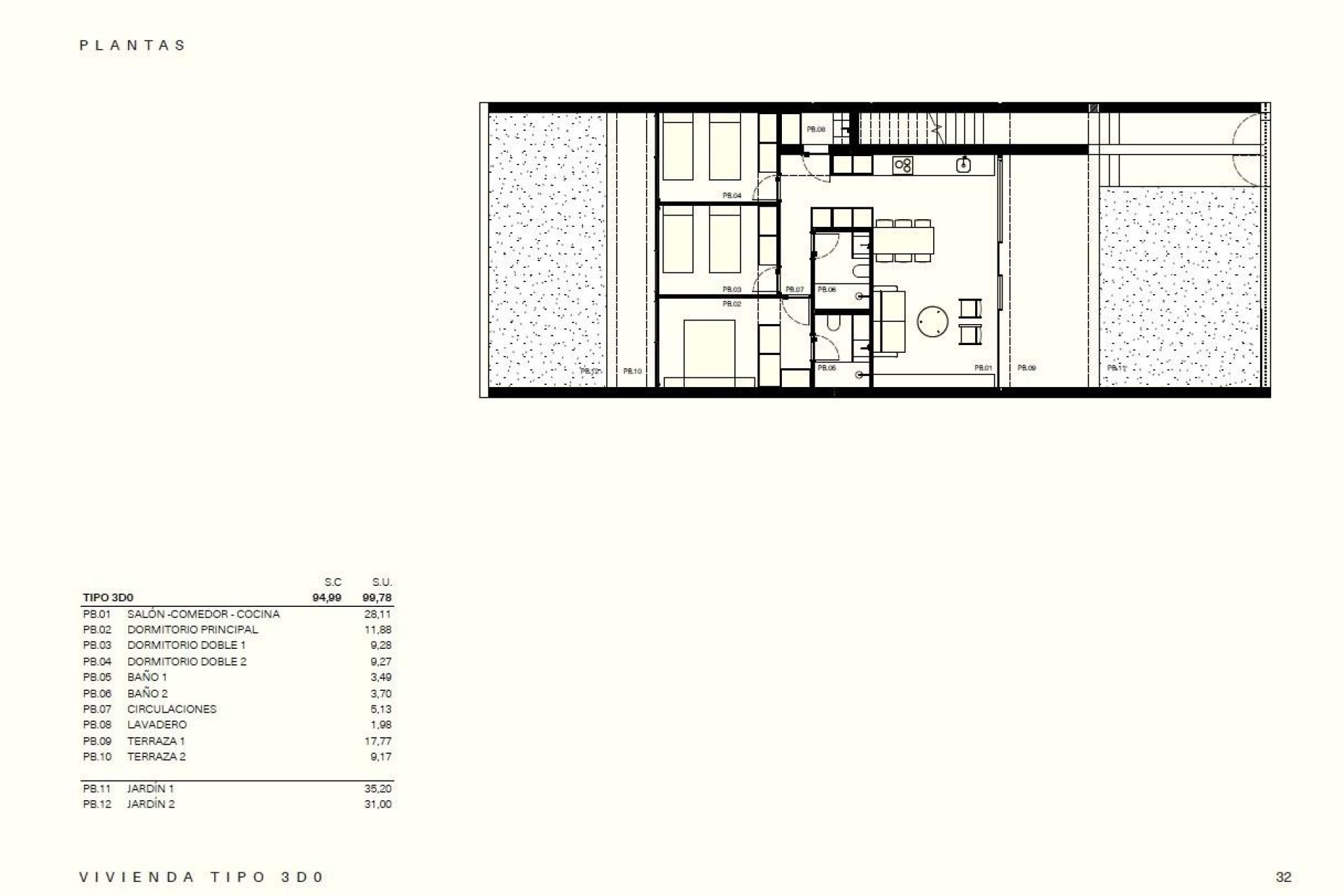
  • Construido 99m2
  • Parcela 76m2
  • Habitaciones 3
  • Baños 2
  • Piscina
  • PDF/Imprimir

Apartamentos residenciales de nueva construcción en Los Balcones, Torrevieja

Características

Habitaciones: 3
Baños: 2
Construidos: 99m2
Útiles: 94m2
Parcela: 76m2
Piscina:
Distancia a la playa: 3500 Mts.
Terrace: 27 Msq.
Double Bedrooms: 3
Air Conditioning: Pre-Installed
Useable Build Space: 94 Msq.
Beach: 3500 Meters
Parking - Space
Storage / Trastero
Communal Pool
Gated
Number of Parking Spaces: 1
Near Schools
Near Commercial Center
Location: Coastal, Urbanisation
Garden

Localización

separador

AGENCY & AM Realizar una consulta

CONTACTAR POR WHATSAPP
Responsable del tratamiento: Agency M a M, Finalidad del tratamiento: Gestión y control de los servicios ofrecidos a través de la página Web de Servicios inmobiliarios, Envío de información a traves de newsletter y otros, Legitimación: Por consentimiento, Destinatarios: No se cederan los datos, salvo para elaborar contabilidad, Derechos de las personas interesadas: Acceder, rectificar y suprimir los datos, solicitar la portabilidad de los mismos, oponerse altratamiento y solicitar la limitación de éste, Procedencia de los datos: El Propio interesado, Información Adicional: Puede consultarse la información adicional y detallada sobre protección de datos Aquí.
WhatsApp