Villas de Obra Nueva en Pinoso en parcelas rústicas
Puede elegir villas con toques tradicionales españoles o acabados super modernos, luminosos y limpios. Hay varios tamaños a elegir entre 3 y 6 dormitorios y con 1 o 2 plantas.
Diferentes parcelas legales disponibles a elegir (rústicas con un mínimo de 10.000 m2), algunas a poca distancia de la ciudad, algunas totalmente privadas y las más populares están a 5-10 minutos en coche de una ciudad. Tenemos una parcela para cada gusto, todas con vistas impresionantes y todas tienen agua de red + electricidad incluida en el precio e internet de alta velocidad disponible. En el precio publicado hay incluidos 30.000 eur destinados a la parcela, si la parcela elegida tiene un coste superior, se pagará la diferencia.
Del mayor y mejor constructor de la zona y utilizamos materiales de primera calidad para un acabado perfecto.
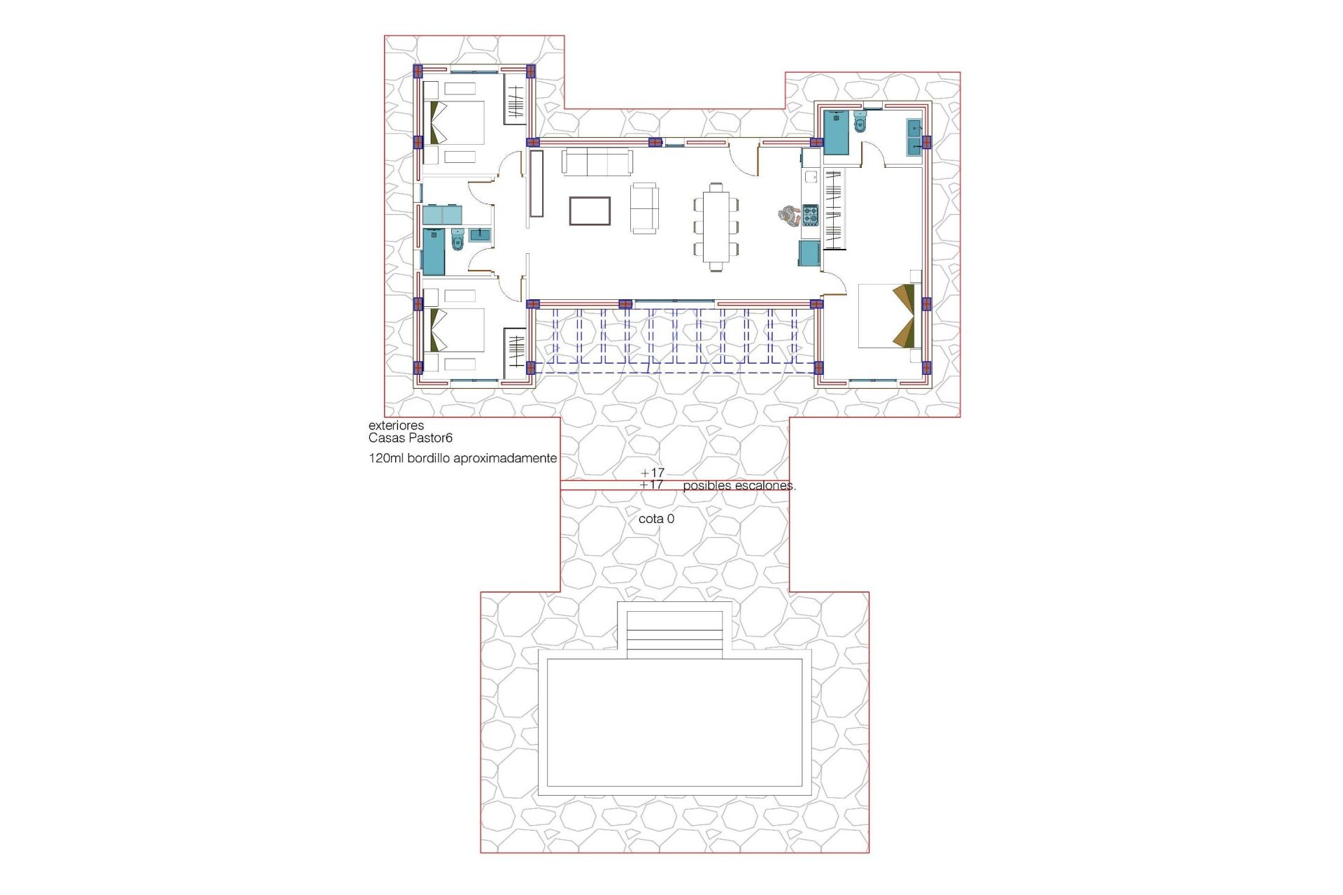
Todas las casas incluyen terraza de hormigón estampado de 2m alrededor de la piscina (color y patrón a elegir), 1m alrededor de la casa, entrada cerrada, vallado de 3.000 m2, preinstalación de aire acondicionado por conductos, cocina estándar, puerta de seguridad, ventanas oscilobatientes alemanas (o correderas si se prefiere), chimenea empotrada (en acabado tradicional), preinstalación de televisión e internet, camino de grava más unos metros alrededor de la casa, fosa séptica.
Los baños incluyen columna de ducha, plato de ducha o bañera, muebles de lavabo (varios colores a elegir) con fregaderos, grifos y espejos, además de una gran selección de azulejos de pared.
Amplia selección de baldosas cerámicas para el suelo, de distintos colores, efecto madera, etc.
Las cocinas incluyen armarios con puertas y tiradores estándar, fregadero y grifo de acero inoxidable, preinstalación para horno, lavavajillas, extractor. Varias encimeras de granito a elegir. Electrodomésticos no incluidos.
Escalera de mármol (crema, blanco o gris) y barandillas incluidas, más barandillas para el porche delantero.
Puede personalizar la casa a su gusto, la mayoría de los cambios internos son gratuitos, pudiendo elegir acabados en los azulejos, bancadas de cocina, mármol para las escaleras o repisas, etc. Las casas se pueden ampliar e incluso podemos construir su propio diseño. Puede contratar varios extras como una piscina más grande, garaje individual o doble, casa de invitados, etc., con un coste adicional.
La ciudad de Pinoso está aproximadamente a 45 minutos hacia el interior de Alicante y las playas de arena blanca de la Costa Blanca y cerca de la frontera de Murcia, Alicante.
Tiene una población de poco menos de 8.000 habitantes. Pinoso, también conocido como El Pinos debe su nombre a los pinos que cubren las sierras de la zona. Pinoso ofrece un estilo de vida rural español, sin semáforos, casi sin tráfico, prácticamente los únicos atascos son causados por los tractores que llevan las uvas a la Bodega. Los campos están plantados de viñas, almendros y olivos. En febrero los campos se llenan de almendros en flor de color rosa.
Pinoso tiene muchos bares, restaurantes y tiendas, un nuevo centro médico 24 horas, dentistas, dos escuelas primarias y 1 secundaria, un teatro. Hay un excelente centro deportivo con piscinas al aire libre, pistas de tenis, campos de fútbol y gimnasio, biblioteca y muchas otras instalaciones, incluyendo una hermosa zona de picnic entre los pinos, con barbacoas, zonas de estar y agua corriente.