Obra nueva » Villa » Aspe » Poligono
Agency & AM Property

Aspe · Poligono 19 Villa · Obra nueva

REF: NB-80119
637.000€
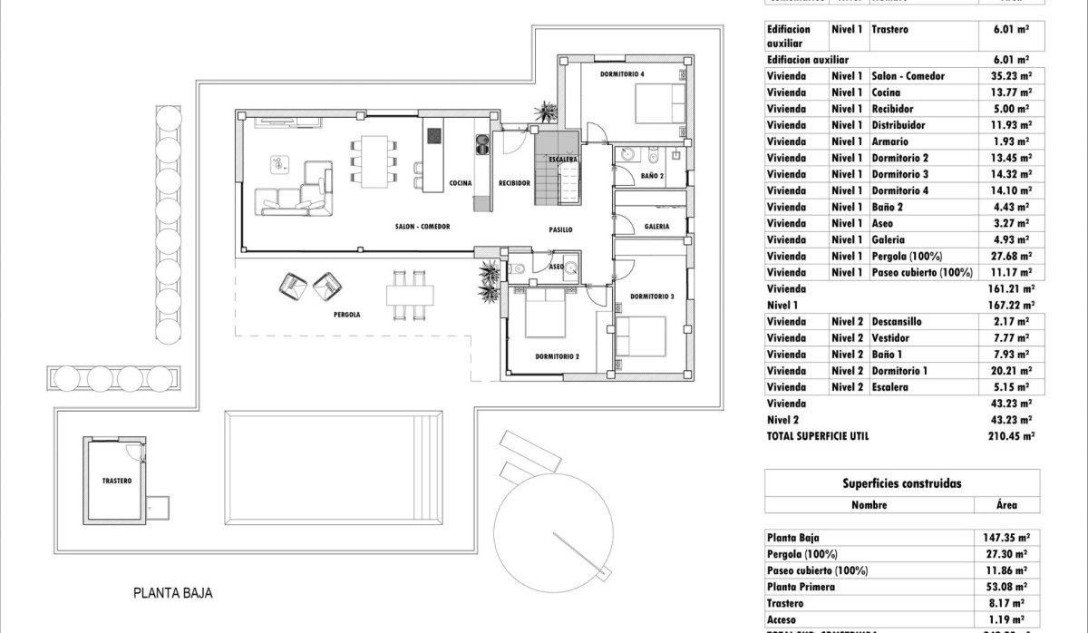
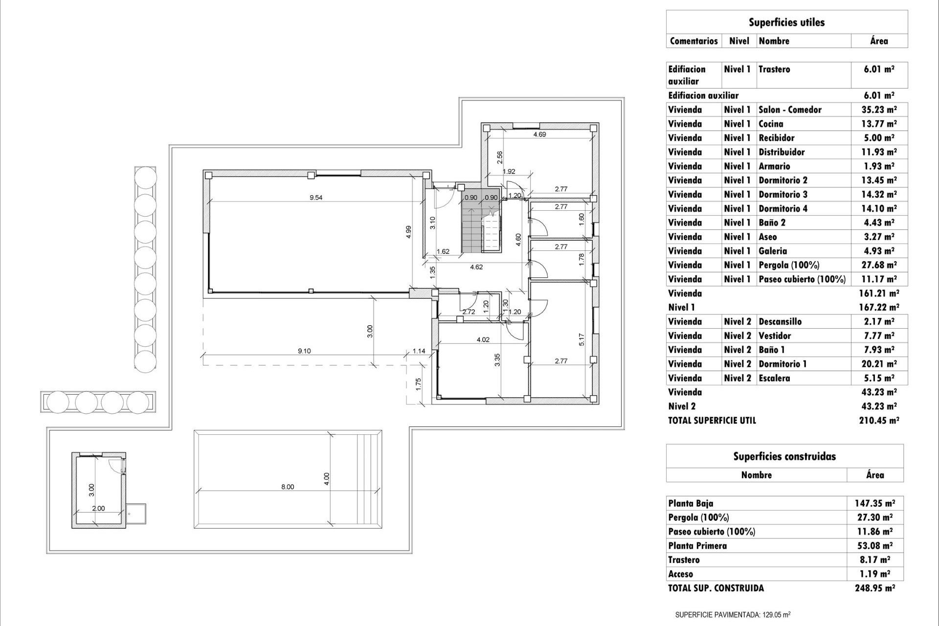
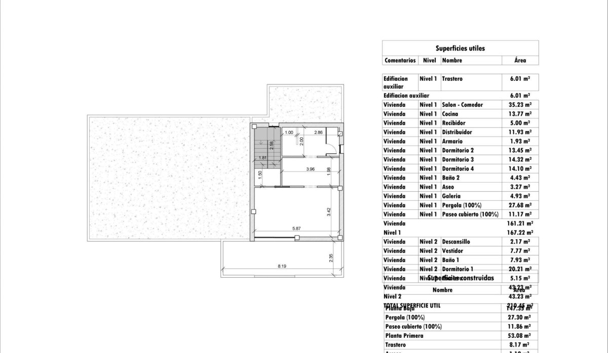
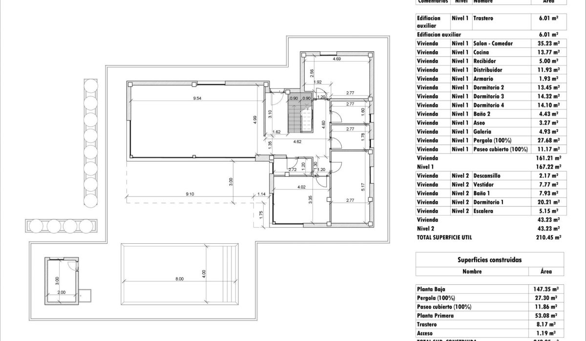
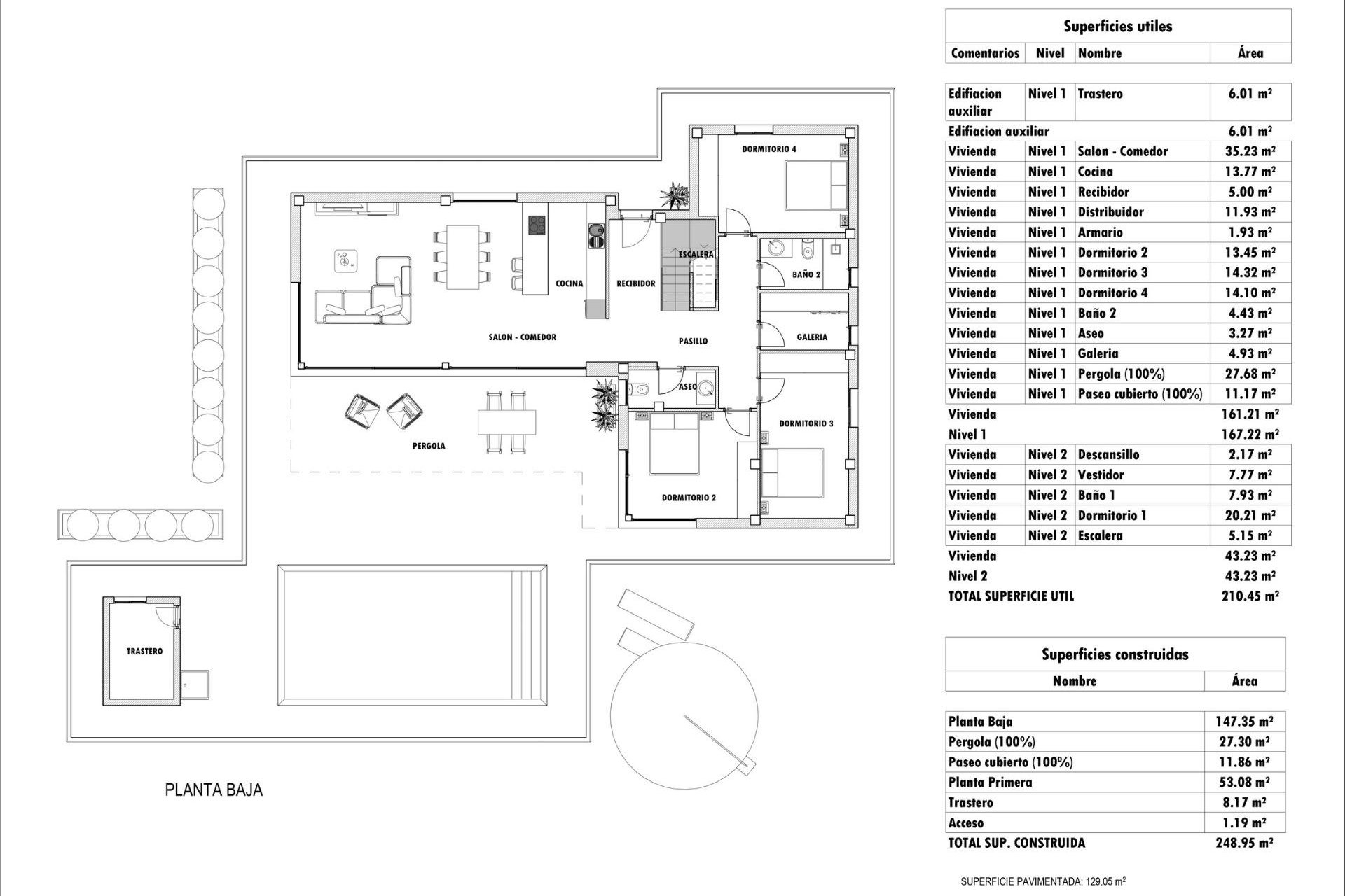
  • Construido 248m2
  • Parcela 13.172m2
  • Habitaciones 4
  • Baños 3
  • Piscina
  • PDF/Imprimir

Villas de obra nueva situadas en término de Aspe.

Características

Habitaciones: 4
Baños: 3
Construidos: 248m2
Útiles: 210m2
Parcela: 13.172m2
Piscina:
Distancia a la playa: 40000 Mts.
Private pool
Gated
Number of Parking Spaces: 1
Near Schools
Garden
Air Conditioning: Pre-Installed
Double Bedrooms: 4
Terrace: 38 Msq.
Useable Build Space: 210 Msq.
Beach: 25000 Meters
Parking - Space
Location: Mountain
Storage / Trastero

Localización

separador

AGENCY & AM Realizar una consulta

CONTACTAR POR WHATSAPP
Responsable del tratamiento: Agency M a M, Finalidad del tratamiento: Gestión y control de los servicios ofrecidos a través de la página Web de Servicios inmobiliarios, Envío de información a traves de newsletter y otros, Legitimación: Por consentimiento, Destinatarios: No se cederan los datos, salvo para elaborar contabilidad, Derechos de las personas interesadas: Acceder, rectificar y suprimir los datos, solicitar la portabilidad de los mismos, oponerse altratamiento y solicitar la limitación de éste, Procedencia de los datos: El Propio interesado, Información Adicional: Puede consultarse la información adicional y detallada sobre protección de datos Aquí.
WhatsApp