RESIDENCIAL DE OBRA NUEVA EN LA MANGA CLUB RESORT
Exclusivo residencial de obra nueva de 42 apartamentos ideal para uso personal o inversión en uno de los famosos Resorts de La Manga Club.
Estas modernas y luminosas residencias ofrecen impresionantes vistas al Mar Menor, y sus amplias terrazas y la piscina comunitaria permiten disfrutar al máximo del sol mediterráneo.
Se trata de la última promoción céntrica de viviendas de obra nueva en La Manga Club, a sólo 5 minutos a pie de todas las tiendas y restaurantes.
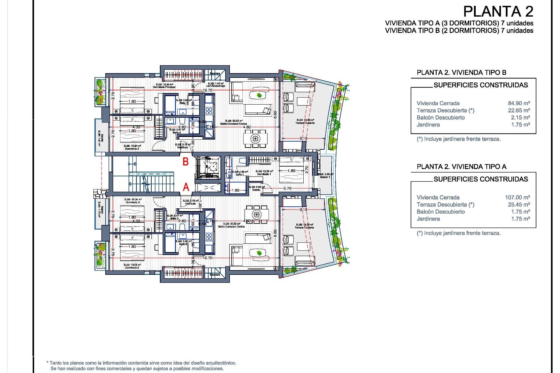
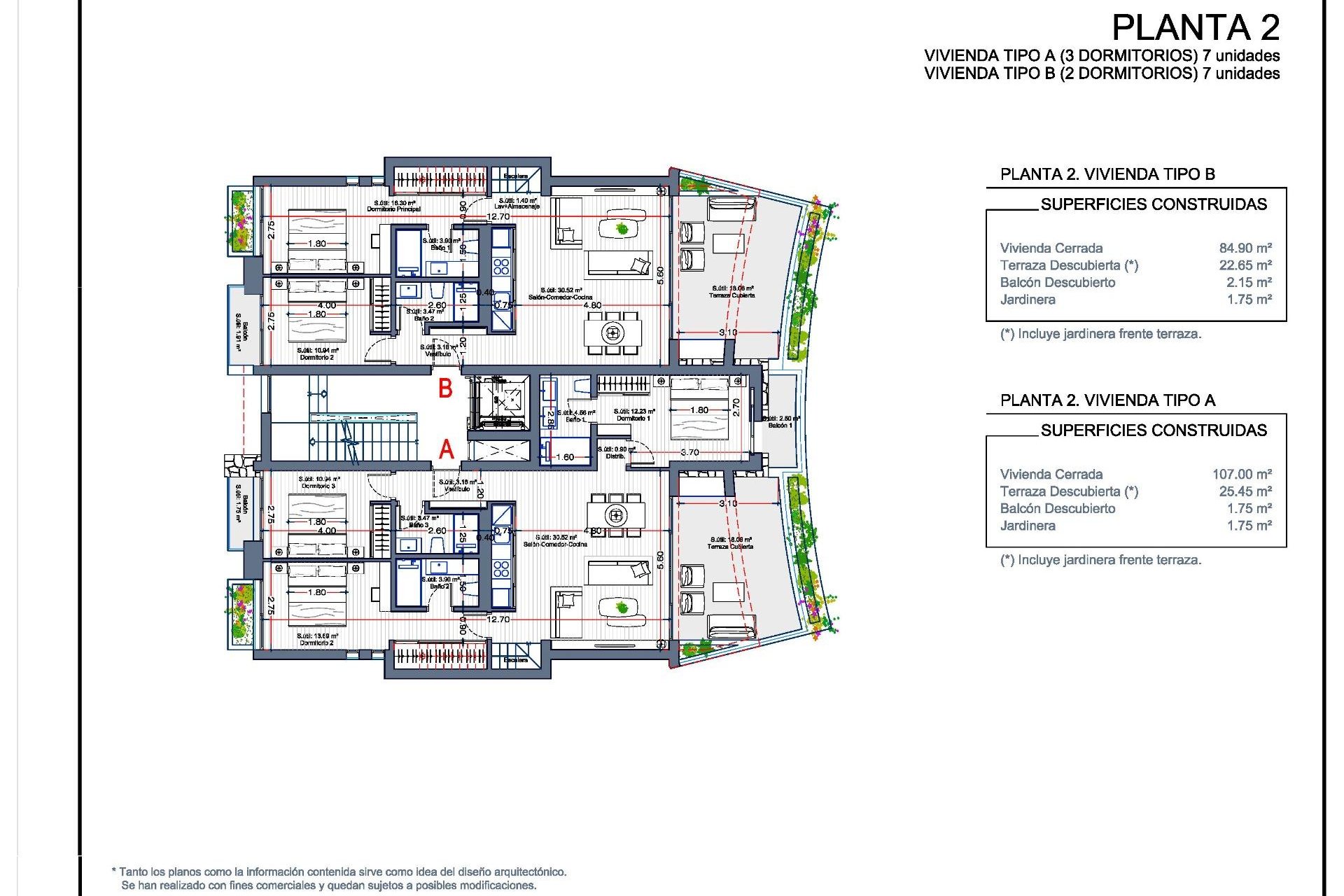
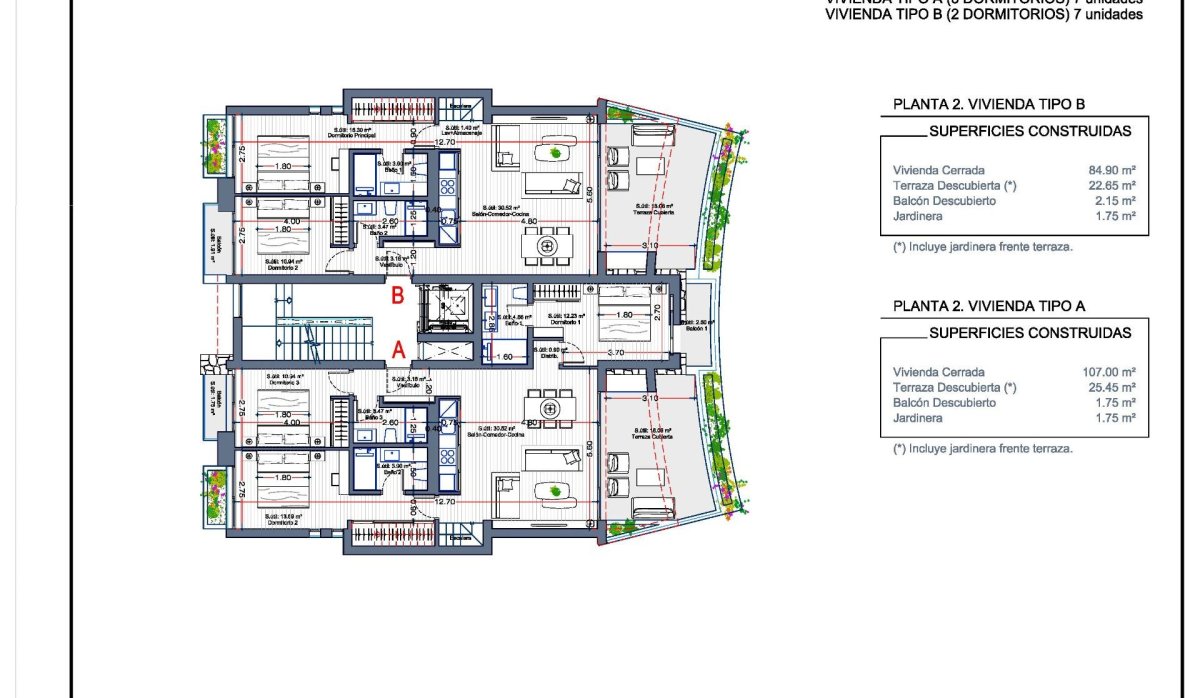
Los derechos deportivos están incluidos y cada vivienda incluye un trastero.
Puertas interiores de una hoja de 210x82,5x4 cm., de tablero DM, prelacadas en blanco, con ranuras horizontales cada 50 cm. Armario empotrado prefabricado con puertas correderas, de panelado de tablero DM, prelacado en blanco.
En baños, alicatado con gres porcelánico, tamaño 60 x 30 cm, colocado sobre superficie soporte de pared interior de cartón yeso laminado. En cocinas, alicatado con azulejos de gres porcelánico, formato 60 x 30 cm, colocados sobre soporte de pared interior de cartón yeso laminado.
Sistema de calefacción por aerotermia, aire acondicionado y agua caliente sanitaria. Fancoils de alta eficiencia. Ventilación controlada mecánicamente DOUBLE FLOW.
Bloque de puerta de entrada blindado. Acabado blanco. Clase de seguridad 3. Puerta metálica abatible para acceso de vehículos. Portón metálico unilateral de apertura manual para acceso peatonal.
La Manga Club es uno de los principales complejos deportivos y de ocio de Europa. Rodeado de parques naturales y playas vírgenes, su privilegiada ubicación ofrece exclusivos alojamientos vacacionales y residenciales en la costa mediterránea española.
Fundada en 1972, La Manga Club es una comunidad cálida, segura y vibrante que desde hace tiempo atrae a familias y amantes del golf con su variada y destacada oferta de ocio.
La Manga Club goza de excelentes conexiones aéreas. Los aeropuertos locales de Corvera (a sólo 50 km) y Alicante (a menos de 100 km) ofrecen vuelos regulares al resto de Europa, lo que facilita la llegada y salida del complejo.
649