NEWLY BUILT VILLAS WITH POOL IN HONDON DE LAS NIEVES
Discover the elegance and comfort of these beautiful detached villas ranging from 108 to 128 m2, designed to offer you an exceptional lifestyle, all on one floor.
Enjoy the privacy offered by this villa, where you can relax in your own garden, create an oasis of tranquillity, or cool off in your private pool to enjoy the warm summer days.
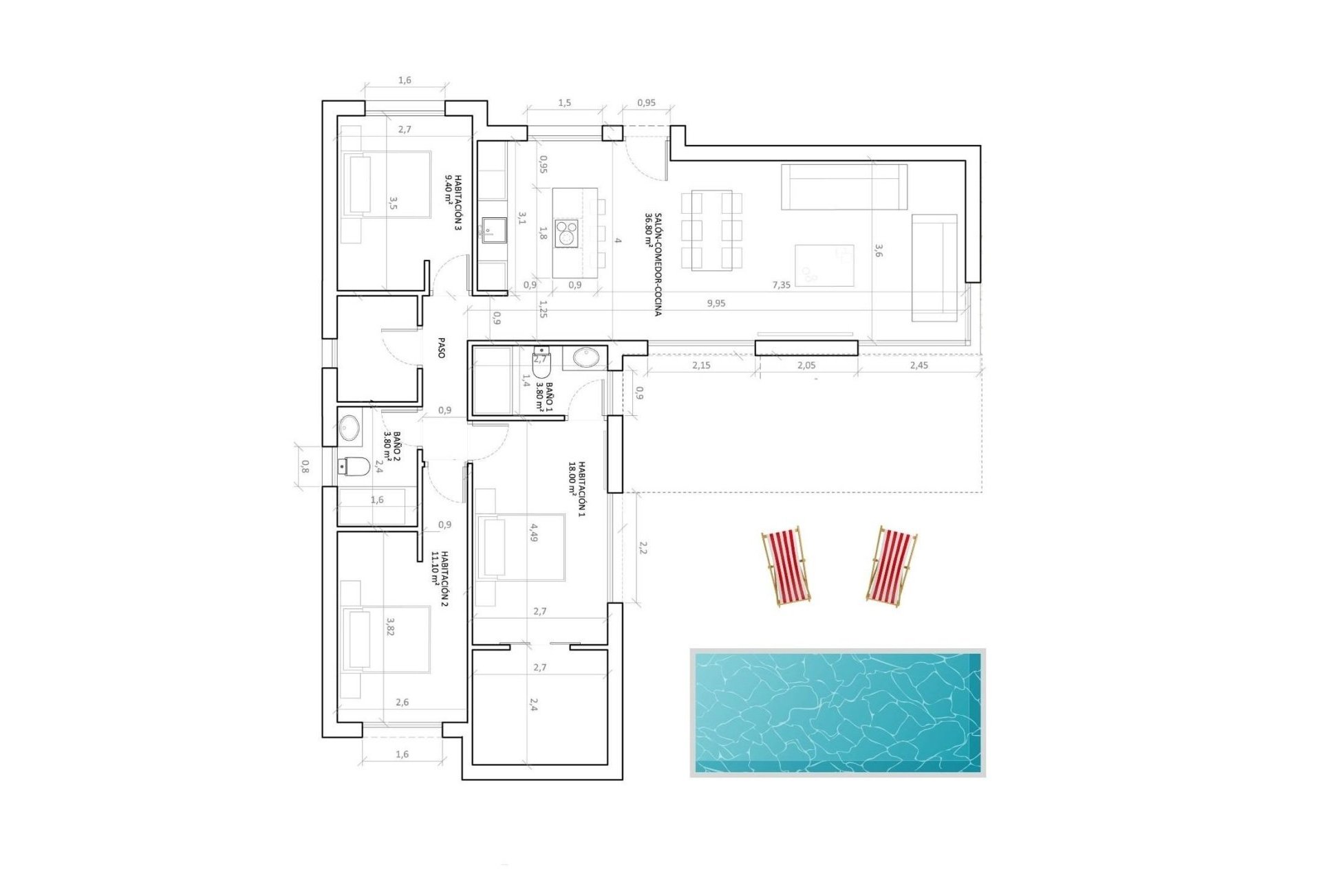
The property is distributed into two large areas:
Day area: Here we find a spacious living-dining room with an open-plan kitchen (kitchen furniture included) that connects to the large modern porch through two large windows, leading to the landscaped outdoor area and the pool.
As an extra space, there is a laundry area strategically located in the layout of the house, which is easily accessible from anywhere in the property.
Rest area: In this area there are 3 bedrooms. The master bedroom has a large dressing room and en-suite bathroom. There is also a second bathroom for the other bedrooms and the rest of the house.
Located in a quiet, residential area, this villa allows you to enjoy the privacy and tranquillity you desire, while being within easy reach of amenities, shops, supermarkets and restaurants. It is the perfect balance between peaceful seclusion and the comforts of modern living.
In this development in Hondón de las Nieves, every day is an opportunity to connect with the world.
Hondón de las Nieves is a municipality in the Valencian Community, Spain.
It is located in the south-west of the province of Alicante, in the Vinalopó Medio region.
The beaches and Alicante airport are very close by, only 30 minutes away by car.